MM++ architects completed the renovation of this private villa in 2014, and they definitely did a remarkable job. The residence is located in Ho Chi Minh, Vietnam and boasts a clean, modern exterior design that allows it to blend with the property’s vegetation. Aside from the fact that the façade includes plants of its own, the surrounding grounds feature palm trees and lawns that contribute to a welcoming and tranquil ambiance.
Adding to this ambiance is the exterior wooden deck and the large swimming pool found just beside it. Inside, we find modern furnishings, high-end amenities and plenty of windows and sliding glass doors at ground level. The kitchen, living room and dining area are the main social spaces and are connected to the outdoors. The upper level is more private and can be accessed using an interior staircase with wooden steps that appear to be suspended in mid air by thin metallic strands.
From the architect:
This project is a renovation of a villa located in east suburb of Ho Chi Minh City, District 2. The intention was to turn the existing construction, a “pastiche” art deco, into a contemporary villa with clean lines and open spaces while keeping the entire existing concrete structure. The cost saving, which represents around 30% of total construction cost and the time saving on the construction schedule was a huge benefit for the client, an investor. Therefore, with balancing the cost, it was possible to add new elements to the construction.
The building has been reduced to his most minimal expression, a white cubic shape with two vertical vegetal walls added on the front and back of the house in order to bring privacy for the bedrooms and allowing large openings for natural ventilation without crossing views. The vertical garden “extends” the surrounding vegetation onto the walls and makes the house “disappearing” into the landscape. It creates a strong visual connection between the house and the garden and gives an identity to the place.
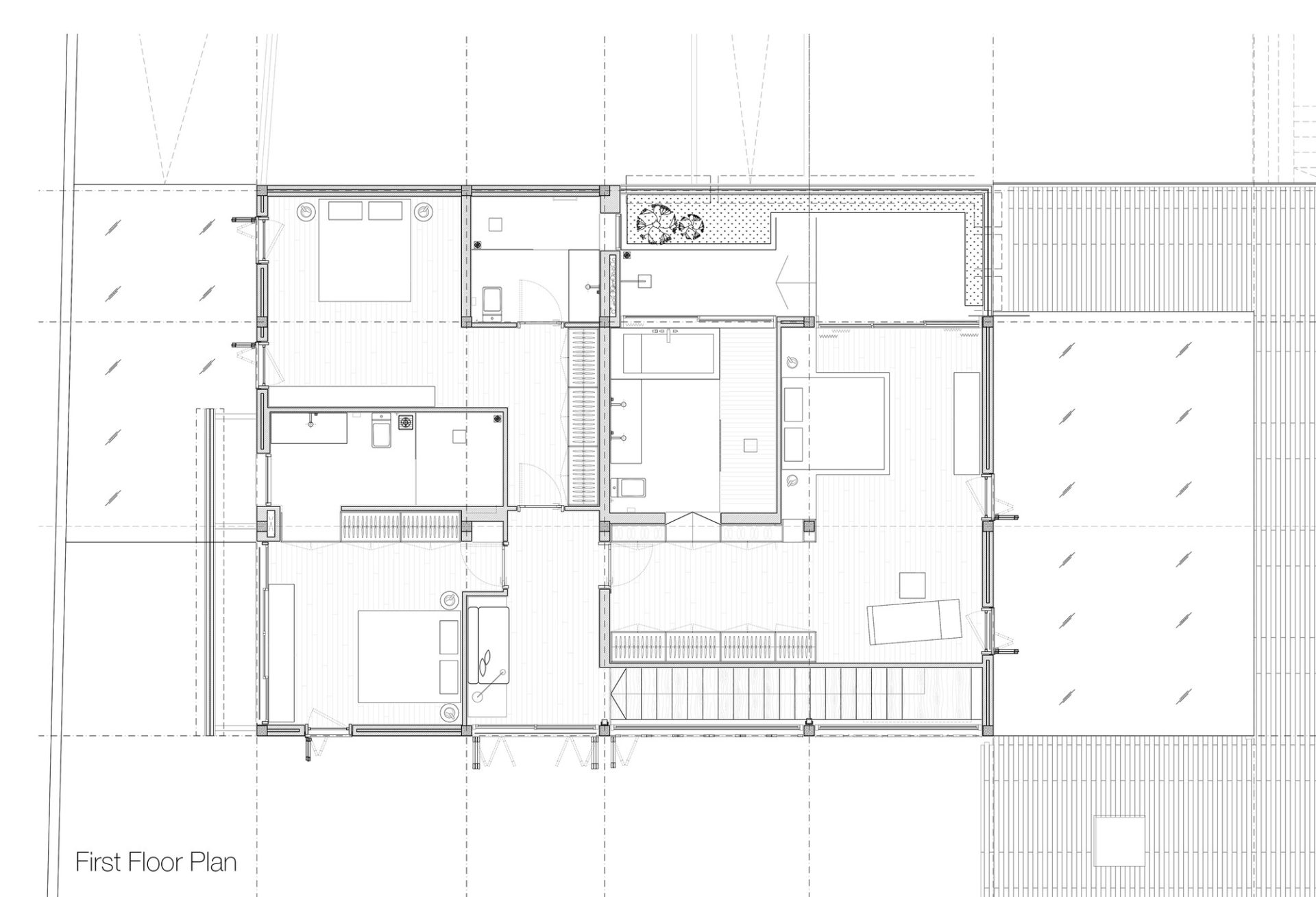
On the ground floor, living room, dining and kitchen are merged in one unique space fully open to the outdoor on three sides, bringing the garden inside the house. Swimming pool and decking have been reshaped as an extension of the interior space. The staircase has been relocated for a better distribution of the first floor and creates the main feature of the living room with a floating steps design. On the first floor, three bedrooms instead of the four existing in order to gain space to create a real master suite.
Starting from a poor existing space quality, enclosed, with no connection to the garden, this project is an experiment to demonstrate how it can be versatile and fun to “play” with an existing structure and to turn the construction into a radically different layout and design, revealing better spaces, adding value to the place and proposing a life style closer to nature.
Architects: MM++ architects
Location: Thảo Điền, District 2, Ho Chi Minh, Vietnam
Project Architects: My An PHAM THI, Michael CHARRUAULT
Construction Team: Cuong LAM QUOC, Triet LE HUU
Area: 280.0 sqm
Project Year: 2014
Photographs: Hiroyuki OKI














More Similar Articles Like This
Benjamin Moore Exterior Paint: Vibrant Shades for a Striking Home
6 Garden and Lawn Tips to Get Ready for Spring
Marvelous Anantara Dhigu Resort
How Seattle Lawn Care Service Deals With Overgrown Lawns
Seamlessly Apartment by the Beach by ZZ Architects
Boracay Resort & Spa in the Fascinating Philippines
Heavenly Lily Beach Resort & Spa In Huvahendhoo, Maldives
70 Shades of Green: Benjamin Moore’s Vibrant Paint Colors