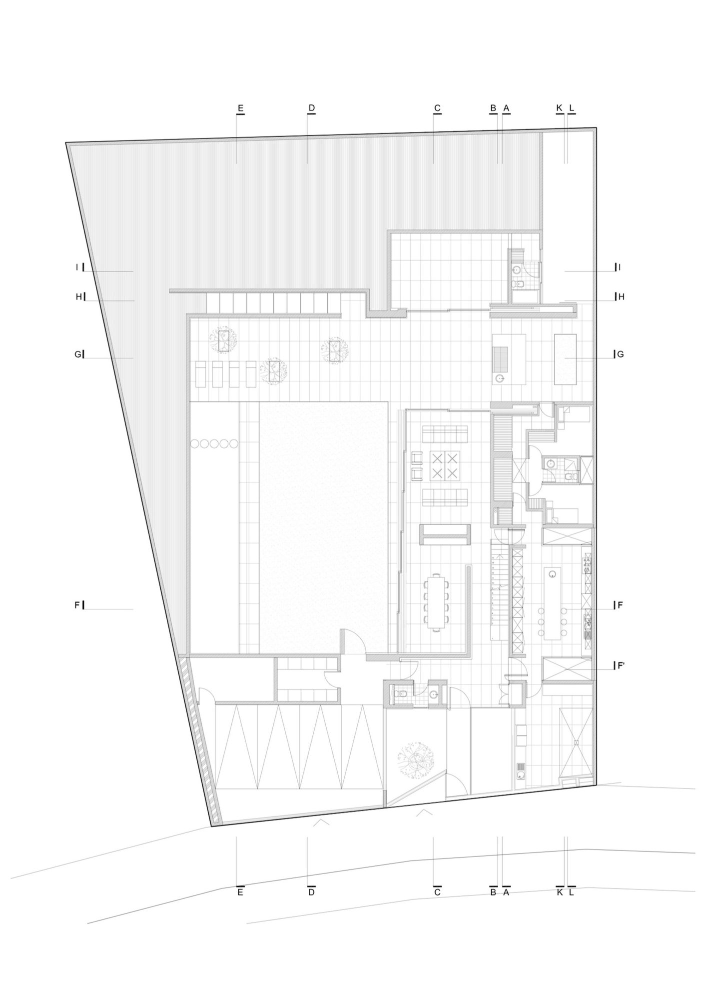
When they were tasked with designing the SH House, the architects over at 01ARQ had to overcome a series of challenges such as integrating the residence in its natural environment despite the somewhat unwelcoming topography. They decided to create a single volume that boasts 7,254 square feet of living space as well as two levels. Located in Santiago, Chile, the SH House benefits from picture-perfect panoramas of nearby hills and mountains. Its kitchen is encircled by a pair of patios that enable cross-ventilation while providing much needed light to the children’s play areas in the basement.
The living and dining areas are located at ground level and are connected to a large patio and a swimming pool due to a large window that can be opened. Directly above, the bedrooms and other private spaces are a part of a concrete volume that appears to be floating above the courtyard without any structural support. Between the living room and the game room, there is an open space that houses the barbecue area. It is here that the owners can find a travertine marble staircase that leads the way to a secondary elevated courtyard.
From the architect:
SH house is located in Santiago de Chile close to Los Andes range, the area is composed of small rolling hills that are surrounded by mountains. The house takes this condition to frame views in several directions.
The lot has 1.000 sq meter area, with a difference of level that reaches 4.5 meters high. The main challenge was to achieve the integration of both immediate and distant landscape with house own programs. To this end stone walls, allowed the formation of different courtyards in different heights.
The House appropriates the slope through single volume. At the entrance the first patio is organized by a small pond and a series of walls of ancient woods used on the railway lines.
The kitchen is located at the south of the lot and it is surrounded by two small patios that makes cross ventilation possible and give light to the basement, were children play room is located.
The bedrooms and privet areas are located in within a concrete volume that develops a 20mts span over the main courtyard without structural supports, under it, the living and dining areas are located surrounded by a large window that opens completely allowing integration with the main patio and the pool.
The barbecue is located in an open space between the living room and a game room, from here is possible to access to the higher courtyard through a travertine marble staircase. The rooms are connected to this area by a terrace at the east of the concrete volume. The materials used are concrete, stone, carob wood and glass primarily.
Architects: 01ARQ
Location: La Dehesa, Lo Barnechea, Región Metropolitana de Santiago, Chile
Principal Architects: Cristian Winckler.Pablo Saric.Felipe Fritz
Area: 674.0 sqm
Photographs: Aryeh Kornfeld
Structural Engineering: Hoehman & Stagno
Contractor: RASI
Client: Cristian Soto
Site Area: 1.092m2















More Similar Articles Like This
Beach House CN – A Superb Contemporary Home in Peru
Lovelli Residence: Mediterranean-Style Dwelling in Bali
Spectacular Luxury House in Sarasota, Florida by DSDG Inc. Architects
Astonishing El Tovar by the Sea
The JKC1 House in Bukit Timah, Singapore
Vibrant Concrete Floor Paint Colors to Elevate Your Space
The Superb Maradiva Villas Resort & Spa in Mauritius
Green Gables Home In Fairfield, Connecticut, United States