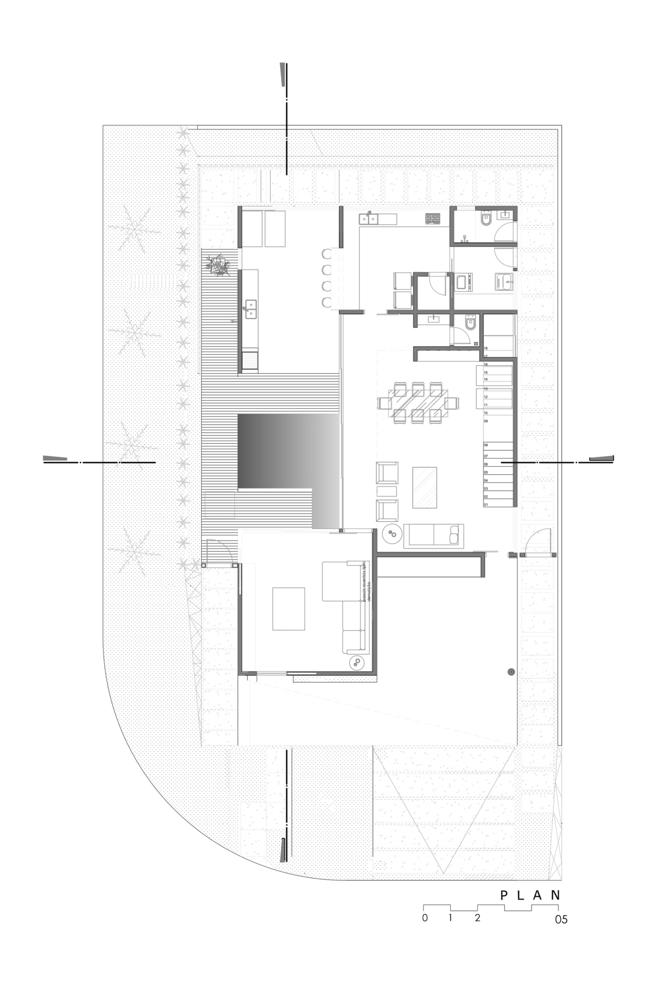
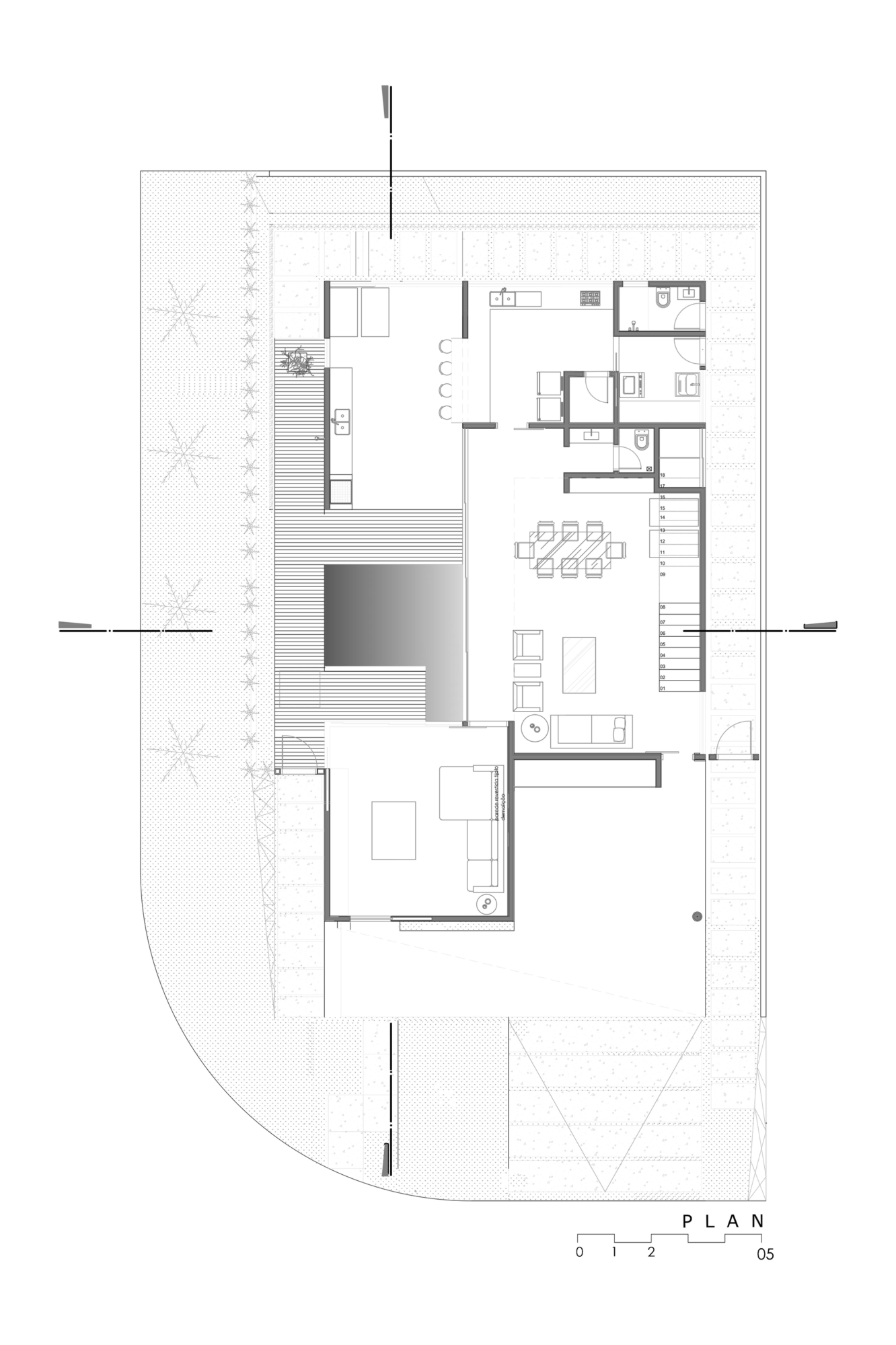
The Alpha House is a contemporary dwelling that was sketched out by Studio Fabrício Roncca and was built in Brazil. It features a two-story design that includes rough exterior finishes and welcoming, spacious interior living conditions. The abode was inspired by New York Soho lofts and the unique architectural suggestions of the Paulista School.
This is a house that ensures entertainment and relaxation in equal parts thanks to its comfortable bedrooms, spacious living room and games area. Since the owner is a big fan of music and games, the architects implemented a few pinball machines in a grill area close to the kitchen. The swimming pool is also worth mentioning, especially since it is found just a few steps away from the living room.
The high quality materials used for the construction and finishes complement each other and give off a feeling of modernism, luxury and comfort.











More Similar Articles Like This
Exquisite Crossacres Mansion In Surrey, England
Unique Click Clack Hotel In Bogota, Colombia
How Seattle Lawn Care Service Deals With Overgrown Lawns
Marvelous Anantara Dhigu Resort
6 Garden and Lawn Tips to Get Ready for Spring
Shadowed Depths: Vintage-inspired Paint Colors for Dark Basements
70 Shades of Green: Benjamin Moore’s Vibrant Paint Colors
Wonderful Yachting Club Villas at Elounda Beach by Davide Macullo Architects