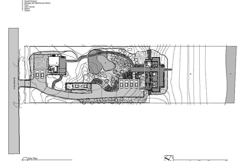
The Surfside House in Bridgehampton, New York was designed by Stelle Architects and was wonderfully integrated in the light-saturated, oceanfront landscape. It features guest quarters, a garage, a two-story house clad in horizontal slats and a swimming pool.
To its natural beauty were also added beach grass, bayberry and other plants from the area. The house also benefits from geothermal heating/cooling system and photovoltaic electric panels.
What else could you wish for when you have the sea just steps away and the house you live in is equipped with everything you need in order to live a comfortable life?















More Similar Articles Like This
Santa Barbara Style Home in Paradise Valley, Phoenix
Lawn Care Tips, The Basics For Each SeasonÂ
Gorgeous And Spacious Home In Sunset Strip
Shadowed Depths: Vintage-inspired Paint Colors for Dark Basements
A Superb Italianate Mansion in California, USA
Stunning Sustainable Home in Costa Rica by SPG Architects
Vibrant Wood Tones: Explore a Spectrum of Spray Paint Colors!
The Superb Villa Verai on Phuket Island, Thailand