Offering no less than 20,667 square feet of living space and 3 floors, the S.A Residence was sketched out by a team of architects from Shatotto, and it can be found in Dhaka, Bangladesh. It was completed in 2011, and since it is surrounded by a series of tall multi-story buildings, its swimming pool was placed at its core for privacy purposes.
Aside from its obvious role in entertainment, this central pond also helps in maintaining a cool and comfortable atmosphere within the abode by permitting hot air to escape. Furthermore, the design of the residence itself ensures that cool air can flow seamlessly throughout the main living areas during the warm season.
Built using sturdy and reliable cast-concrete, the S.A Residence boasts a modern and cold appearance that’s balanced by the lush greenery present on the site. One of the most interesting and eye-catching features of this lovely home is a large circular opening that provides uninterrupted views of the sky.
From the architect:
The building envelope of this three-storey residence is a pure square, constructed of a single material, cast-concrete. The sphere, the universal celestial form, in this case is transformed to its terrestrial expression in the shape of a square.
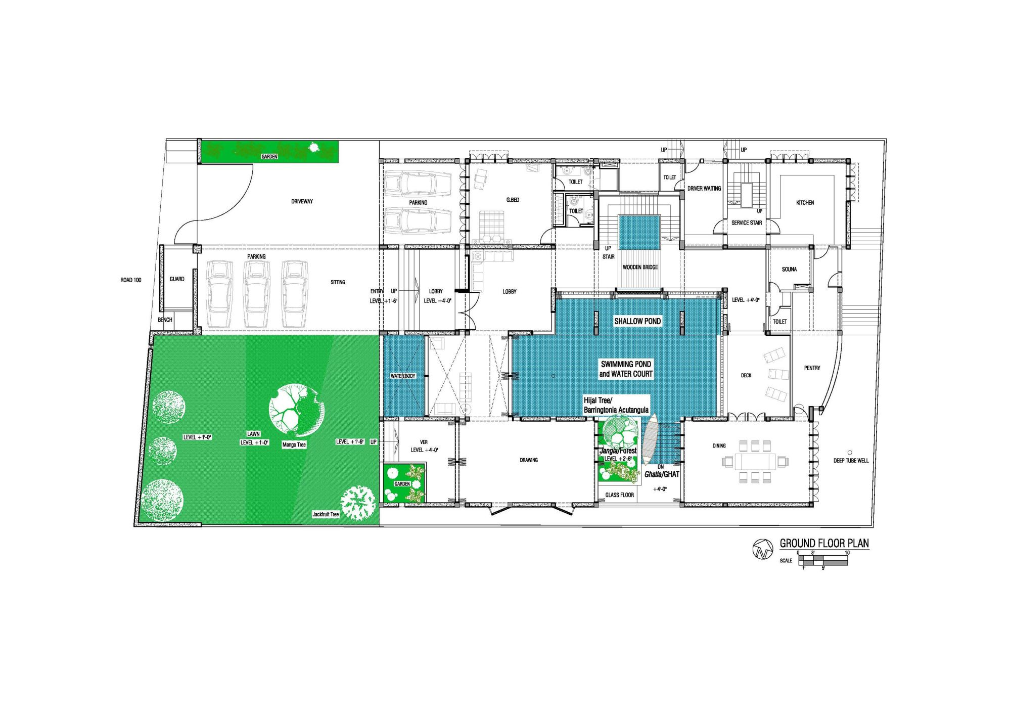
Considering the socio-economic conditions of Dhaka, architectural vocabulary is kept simple, with traditional spaces like the courtyard, pond, ghat (steps to water) and ample Green to merge together urban and rural typologies in this urban context.
The site is surrounded by multi-storied buildings as on-lookers. An introverted design strategy was hence adopted, placing a water-court as a swimming pond in the middle of the house to ensure privacy.
It is the inter-relationship between form and void which is at the heart of Lalon’s philosophy, the underlying inspiration for this building. The open quad at the center depicts Nothingness.
The South and South-East have been designed to bring in cool breeze during the hot, humid summers and the warmth of the sun during the winters. The central water court acts as a natural exhaust system, allowing hot air to escape and making the middle court a cool sanctuary.
Location: Dhaka, Bangladesh
Project Year: 2011
Project Area: 20,667 sq ft
Photographs: Daniele Domenicali














More Similar Articles Like This
Exquisite Crossacres Mansion In Surrey, England
Amazing Four Seasons Resort Bora Bora
Unique Click Clack Hotel In Bogota, Colombia
Benjamin Moore Exterior Paint: Vibrant Shades for a Striking Home
Different Types Of Foundations For Summer Houses and Garden Buildings
These Top Tips Will Help You to Turn Your Garden into the Ultimate Glamping Site!
Stunning Sustainable Home in Costa Rica by SPG Architects
Saguaro Palm Springs by Joie de Vivre