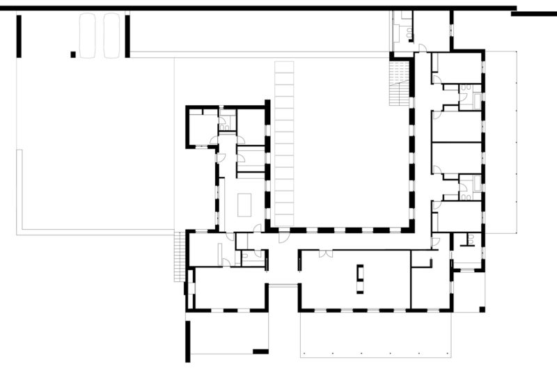
This beautiful weekend house can be found within the Vila Boim municipality in Elvas, Portugal, and it was sketched out by skilled architects from a company named Intergaup. Boasting an unmistakable sense of rustic elegance, this U-shaped abode features just one storey, and it was built using traditional materials that allows it to blend seamlessly into its rural surroundings.
Speaking of its surroundings, this home is nestled on a 123-acre agricultural property that includes olive trees, vineyards as well as picture-perfect hills and plains. As we mentioned before, the home features a distinct U shaped layout, which means that it is divided into 3 main sections. The southern part of the abode contains the 4 bedrooms, while the opposite side to the north includes the service areas, a kitchen and a small dining room. The central part of the abode faces west and involves the entertainment and social areas such as the living room and the dining room. Furthermore, this U-shaped design facilitated the creation of a private central courtyard, which ensures quick and easy access to all of the 3 separate wings.






















More Similar Articles Like This
5 Ways to Turn Your Yard Into a Fancy Space
Pure Perfection: Discover the Top White Paint Colors for a Flawless Décor
Wonderful Yachting Club Villas at Elounda Beach by Davide Macullo Architects
Marvelous Anantara Dhigu Resort
Secluded Naladhu Island in Maldives
Beautiful Apartment in Stockholm for $1 Million
Stunning Banyan Tree Ungasan Bali in Indonesia
Vibrant Wood Tones: Explore a Spectrum of Spray Paint Colors!