Pricila House is a project designed by Martin Gomez Arquitectos. Moreover, it became a dare for the architects to create a modern and stylish home in a neighborhood that was re-conquering its beauty as a residential area.
The building’s structure is made of concrete – material that can be seen on the façade too. This type of dwelling generates privacy from indiscrete eyes, and Pricila actually has a lot of surprises to hide.
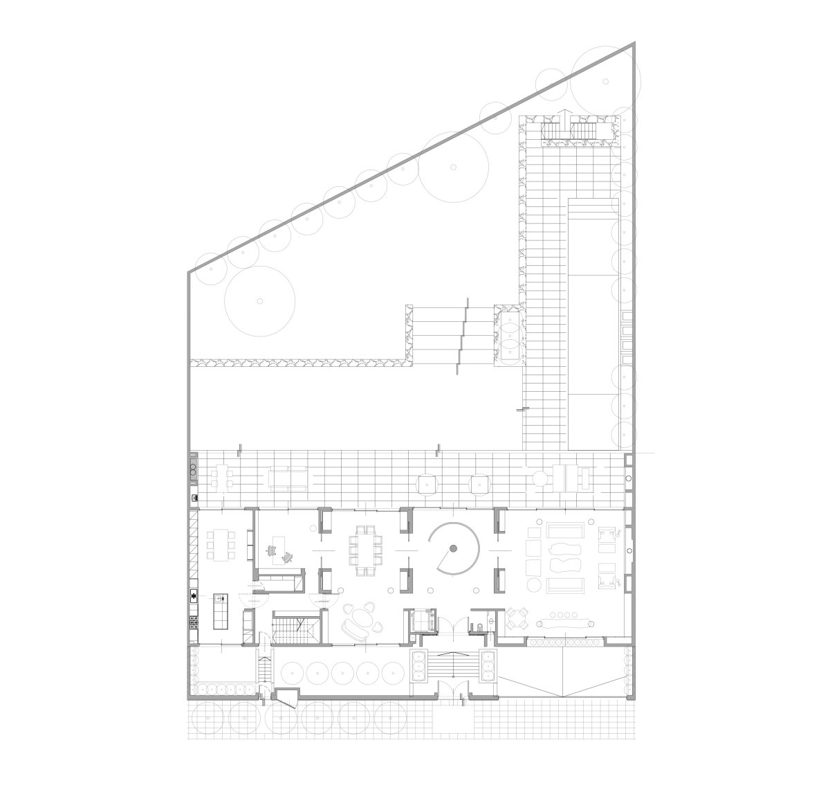
Spanning over 3280 sq ft, this palace-like home has high ceilings (9 ft tall) and an unique interior. The circular staircase is an impressive element that acts like a focus point because of the materials it is made of: stainless steel, concrete, and wood. The glass dome-like ceiling over the stairs frames the sky and lets natural light flow inside. Other materials used for the interior of the home are marble and lapacho wood. These are materials of great nobility that give a certain degree of luxury to this dwelling.
On the outside, this residence pays tribute to the tropical gardens. It is like an oasis with palm trees, a clear-water swimming pool and concrete stairs covered with grass. The living and dining on the lower floor open to this lush garden, while the upstairs bedrooms have balconies specially designed to offer a view over the garden and pool.
Photos by Alejandro Mezza
















More Similar Articles Like This
70 Shades of Green: Benjamin Moore’s Vibrant Paint Colors
Lovelli Residence: Mediterranean-Style Dwelling in Bali
Seamlessly Apartment by the Beach by ZZ Architects
Beach House CN – A Superb Contemporary Home in Peru
Exploring the New World of Luxury Hoteling
5 Ways to Turn Your Yard Into a Fancy Space
The Sophisticated Casa Villa Flamingo in Spain
Lawn Care Tips, The Basics For Each Season