The incredible residence that you can admire by browsing through the image gallery can be found in Cape Town in South Africa and was completed in 2010 by a local studio called Luis Mira Architects. Dubbed “House in Camps Bay”, this modern masterpiece was envisioned as a holiday residence for a single owner, but it also boasts more than adequate housing arrangements for guests.
Created with utmost attention to detail, this home is the embodiment of luxury and benefits from a unique location overlooking the nearby sea and the wonderful landscape surrounding Cape Town. The interiors are enveloped in high quality finishes, comfortable seating arrangements and a plethora of high-end amenities that ensure a remarkably lavish lifestyle for whoever is fortunate enough to own the whole abode.
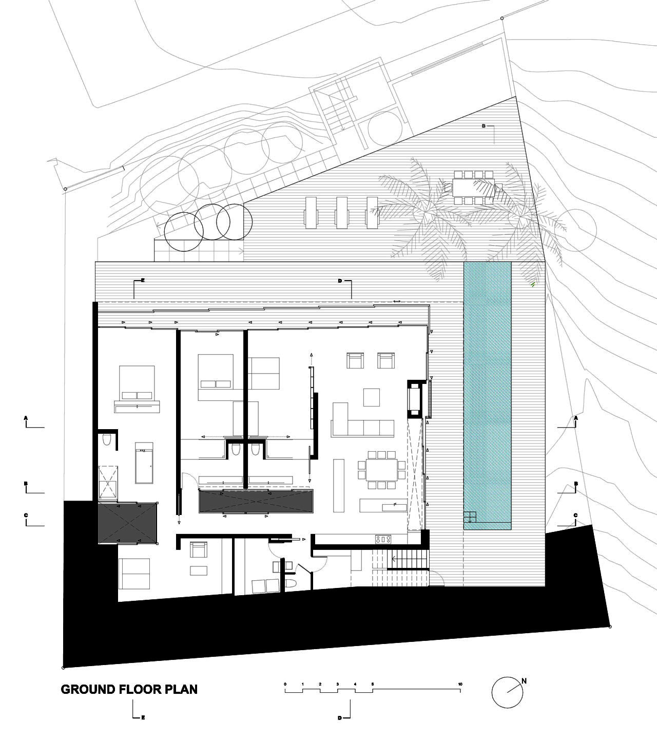
The courtyards and terraces are equally impressive as they ensure ample opportunities for leisure and fun. The ground floor, for example, includes 2 superb courtyards featuring glass walls, one of them connecting 2 stunning bedrooms while the other is an intricate part of the master bedroom’s en suite.
Photos by Wieland Gleich, Luis Mira Architects




















More Similar Articles Like This
Spectacular Rooftop Apartment by Innocad
Wonderful Yachting Club Villas at Elounda Beach by Davide Macullo Architects
The Superb Maradiva Villas Resort & Spa in Mauritius
Tips for Choosing the Right Blue Paint Color for Your Dining Room
Shadowed Depths: Vintage-inspired Paint Colors for Dark Basements
6 Garden and Lawn Tips to Get Ready for Spring
Beautiful Apartment in Stockholm for $1 Million
70 Shades of Green: Benjamin Moore’s Vibrant Paint Colors