C House located in Santa Cruz, Bolivia, was completed by Sommet & Asociados in 2012. The home is integrated into a picturesque landscape with plenty of greenery and eclectic architecture. It consists of two horizontal volumes: the lowest one which is integrated in the landscape and the highest one that looks like floating in the air.
The project has the sense of a traditional and sensitive construction due to the use of stone and wood finishes.
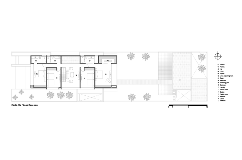
The ground floor is identified with the public spaces such as the living and dining room, the kitchen, the study, the bathrooms and the gallery.
A floating staircase is the liaison point between the hall of the ground floor and the small family living room which is flooded by natural light all day long.




















More Similar Articles Like This
The JKC1 House in Bukit Timah, Singapore
Boracay Resort & Spa in the Fascinating Philippines
Marvelous Anantara Dhigu Resort
Beach House CN – A Superb Contemporary Home in Peru
Loving Luxury at Mardan Palace Resort, Turkey
Exquisite Crossacres Mansion In Surrey, England
Vibrant Concrete Floor Paint Colors to Elevate Your Space
Outstanding Bodrum Houses in Yalikavak, Turkey