Bromley Caldari Architects were tasked with renovating an older A-frame residence from the 1960s. The house is located in Fire Island, New York, and it initially featured a tight spiraling staircase, four dark bedrooms, a cracked pile foundation and a leaky roof. However, the architects managed to transform it into a light-filled and welcoming home, particularly as they redesigned the staircase that blocked light and limited the views towards the outdoors.
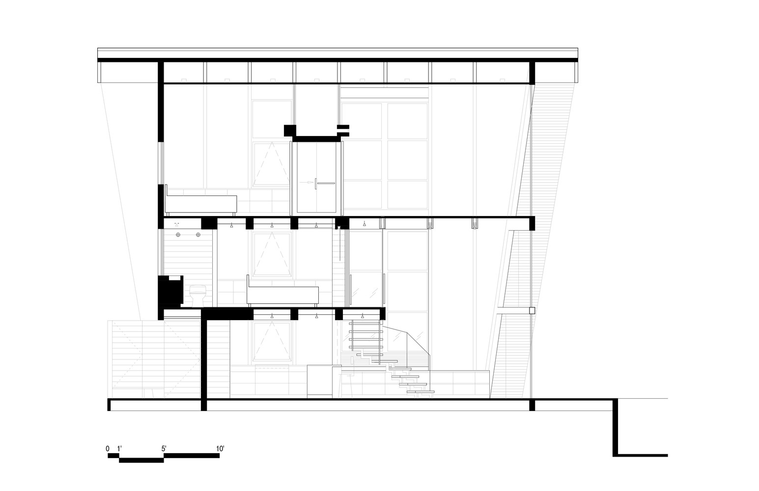
The new staircase creates a promenade through the house and is tucked into a pair of new bay windows that flood the residence with light throughout the day. Similar to skylights, the windows are staggered at different elevations on each part of the building and are linked by a catwalk balcony inserted in front of the main bedroom.
Finished in 2013, the A-Frame Re-Think project boasts 2,346 square feet of living space.
From the architect:
On a stunning site with panoramic water views and wonderful exposures to the changing light of the day stood a typical 1960’s, three story A-frame. The derelict structure had a tight spiral staircase splitting the middle, four dark bedrooms, a leaky roof and a cracked pile foundation. These were the conditions overcome in this dramatic, open, expansive, light-filled renovation in Fire Island, New York.
The spiral stair in the center was by far the most constraining element in terms of plan, obstructing the view and limiting the travel of light. To maximize daylight, views of the bay, and to open the plan the stair had to be relocated. The redesigned stair creates a promenade through the volume framing views from the living space, second floor bedroom and the crow’s nest third floor.
The low eaves restricted headroom, but by exploiting a local law that permits windows to project two feet from the envelope, the stair could be tucked into two new, large bay windows. The windows, akin to skylights, are staggered at different elevations on each side of the house and connected by a cat-walk balcony in front of the bedroom. Traversing from one side to the other as you rise, bay views are framed at each floor and newly admitted light enters from the sides.
The A-Frame Re-Think is now a cathedral of light-filled with the color of sky and water, complex but simple, where the pieces lock into place like a Rubik’s cube.
Architects: Bromley Caldari Architects
Location: Fire Island Pines, Fire Island, NY 11782, USA
Collaborators: Eurometal (stairs), Lynbrook (skylights), North Shore Window & Door (window)
Area: 218.0 sqm
Project Year: 2013
Photographs: Mikiko Kikuyama
Manufacturers: 3form, Agape, Bega, Caesarstone, Contrast lighting, Duravit, Elkay, Fleetwood Windows and Doors, GE, Guardian, Halliday+Baillie, Kohler, LSI Industries, Leatherneck Hardware, Leviton, Lutron, Lynbrook Glass, Marvel, Modern Fan, National Specialty Lighting, Porcelanosa, Rais, Tech Lighting, Toto, Vola, WAC Lighting













More Similar Articles Like This
Astonishing El Tovar by the Sea
Exploring the New World of Luxury Hoteling
Plain Geometric Residence Designed by Lidija Dragisic
Exquisite Crossacres Mansion In Surrey, England
Stunning Sustainable Home in Costa Rica by SPG Architects
Wonderful Yachting Club Villas at Elounda Beach by Davide Macullo Architects
Secluded Naladhu Island in Maldives
Beautiful Apartment in Stockholm for $1 Million