A lovely abode on the shores of the sea is a dream come true for many individuals, especially if the home is built on a remarkable location such as New York‘s Shelter Island. This lovely residence was completed in 2011 and boasts no less than 3,000 square feet of living space. Designed by Gray Organschi Architecture, this home amazes with a stunning, modern exterior layout, while its interiors are even more impressive since they were adorned by Jonathan Adler & Simon Doonan.
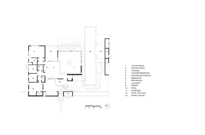
As comfortable and welcoming as it is on the inside, the highlights of the Seaside House come in the form of a series of courtyards that encircle it completely. Effectively separated, the different courtyards play key roles and involve parking facilities, a swimming pool and a covered porch that offers great opportunities for relaxation.
On the inside, the home flaunts a sense of rustic elegance but with a modern twist, all thanks to a remarkable array of high quality furnishings, tasteful decors and useful conveniences.





















More Similar Articles Like This
Saguaro Palm Springs by Joie de Vivre
Boracay Resort & Spa in the Fascinating Philippines
Seamlessly Apartment by the Beach by ZZ Architects
These Top Tips Will Help You to Turn Your Garden into the Ultimate Glamping Site!
10 Different Types of Blue Paint Colors
5 Ways to Turn Your Yard Into a Fancy Space
Shadowed Depths: Vintage-inspired Paint Colors for Dark Basements
Best paint colors for the living room