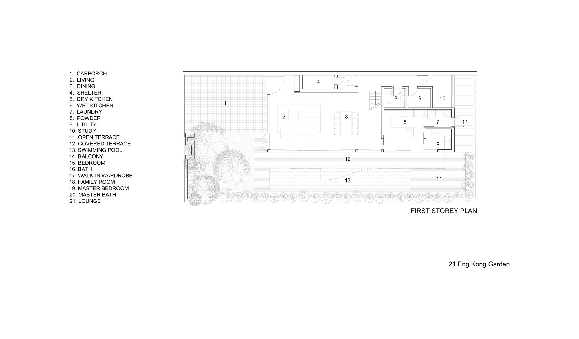
Completed in 2013 by HYLA Architects, Eng Kong Garden represents a masterpiece of modern architecture that is located in Singapore. The residence features three stories as well as 3,842 square feet of living space, and it offers utmost privacy and comfort to its lucky residents. Its layout is divided into two parts by a central staircase, which receives plenty of natural illumination via skylights. The front side of the abode comprises a lounge, a family room, a living room and the dining area, while the rear side includes a study, the bedrooms, a wet and a dry kitchen as well as a stunning master bedroom.
On the third floor, we find a special lounging area that is connected to a rooftop terrace. In order to ensure the privacy of the inhabitants, the architects implemented a large solid white wall along the side elevation. This wall boasts a timber-slated hallway that offers views of a swimming pool below. Access between the various levels is achieved via a contemporary staircase with seemingly floating wooden steps and glass railings.
From the architect:
Eng Kong Garden is a typical 3-storey semi-detached house in Singaporewith a site area of about 300sqm. A timber-clad facade greets the visitor to this private semi-detached house. The house opens upon to the side garden with its timber deck and lap pool. The staircase opens up in the middle of the house and an elliptical skylight brings in light to this space. The staircase splits the house in two volumes; the front houses the Living, Dining, Family Room, Bedroom and Lounge, while the back houses the Dry and Wet kitchen, Study, Bedrooms, Master Bedroom.
Aware of the fact that the neighbour’s house is just a stone’s throw away, the wall along the side elevation features a large solid white wall, with a timber slatted corridor which looks down to the pool below. This wall extends below the second story floor, framing the view of the garden and the lap pool. The view into the neighbour’s house is thus kept to a minimum. Vertical timber strips on the front façade form a delicate screen around the living spaces, providing some delight and a measure of privacy for its inhabitants.
While interior spaces are mostly obscured from public view in the morning, they become visible at night as the interior lighting passes through the gaps between the timber strips on the façade, which is a visual delight. The 3rd storey has a lounge room which opens to the roof terrace. An open shelf with varying widths and heights reflect the design of the front facade, which also has its timber members reducing in width towards the edges.
Architects: HYLA Architects
Location: Eng Kong Garden, Singapore
Principal Architect: Mr. Han Loke Kwang
Assistant Architects: Tiffany Ow
Area: 357.0 sqm
Project Year: 2013
Photographs: Derek Swalwell
Main Contractor: V-Tech Construction Pte Ltd
Structural Engineer: SB Ng & Associates CE
Site Area: 308 m2













More Similar Articles Like This
Tips for Choosing the Right Blue Paint Color for Your Dining Room
Exquisite Crossacres Mansion In Surrey, England
Loving Luxury at Mardan Palace Resort, Turkey
Seamlessly Apartment by the Beach by ZZ Architects
The Sophisticated Casa Villa Flamingo in Spain
Vibrant Wood Tones: Explore a Spectrum of Spray Paint Colors!
Exceptional Coronado Bay Front Estate in California
Lovelli Residence: Mediterranean-Style Dwelling in Bali