The Modern Family Home is a two-story house completed by Dennis Gibbens Architects in 2012, located in Venice, CA, USA.
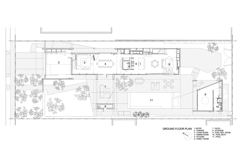
Perfect for a young family of four, this project consists of 5,000-square-foot single family residence and guest house set on 12,000-square-foot property.
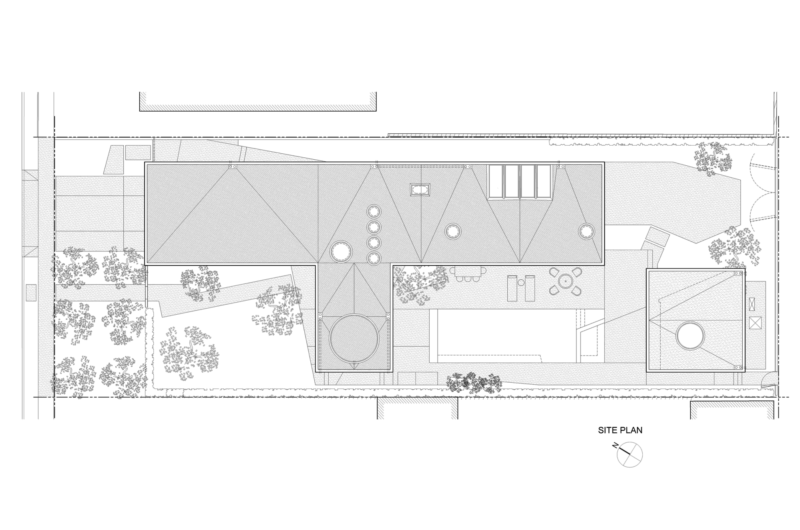
The exterior areas are completed by a front garden, a private garden, an outdoor covered area and numerous concrete deck areas, a sports court, a swimming pool and a spa.
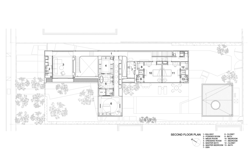
The T-shaped second floor of the main house accommodates a spacious master suite, two children’s bedrooms, a laundry room, an office and a black-out media room.
White stucco, glass and metal panel were used for the exterior of the house, and photovoltaic panels installed on the roof provide electricity for the whole residence.


















More Similar Articles Like This
Loving Luxury at Mardan Palace Resort, Turkey
The JKC1 House in Bukit Timah, Singapore
How Seattle Lawn Care Service Deals With Overgrown Lawns
Gayton Road Residence by Paxton Locher Studio
Outstanding Bodrum Houses in Yalikavak, Turkey
Extraordinary Constance Halaveli Maldives Resort
70 Shades of Green: Benjamin Moore’s Vibrant Paint Colors
5 Ways to Turn Your Yard Into a Fancy Space