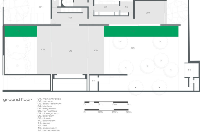
Studio MK27 – Marcio Kogan is the company behind this 8,956 sq ft home in Sao Paulo. The architects designed a contemporary unique home having as central elements river stone and wood.
Mirindibas House has two levels, but it’s the first level that gives the house a surprising look. It is a social area with two opposite walls missing, thus giving the impression that the second level is levitating on top of this blank space. More bizarrely interesting, this open space living starts with a large wood terrace with walls that creates a demarcation point between the terrace and garden. The use of walls for the exterior space leaves the impression of privacy, while the lack of walls for the interior spaces signifies the opposite.
The second floor has thick walls of wood and they hide the bedrooms and bathrooms, private space for the owners. On top of this floor there is a roof terrace limited by glass guard rail.
The concept behind this contemporary home is the combination of open space with the privacy of a home. The architects worked on this idea and the house that resulted is great for parties or for nights of hanging with your friends in the living room. You’ll have everything there: the large couch, the terrace, an in-wall small art gallery, and the pool.
Photos by Nelson Kon





























More Similar Articles Like This
Plain Geometric Residence Designed by Lidija Dragisic
Green Gables Home In Fairfield, Connecticut, United States
5 Ways to Turn Your Yard Into a Fancy Space
Wonderful Yachting Club Villas at Elounda Beach by Davide Macullo Architects
Loving Luxury at Mardan Palace Resort, Turkey
Stunning Sustainable Home in Costa Rica by SPG Architects
Unique Click Clack Hotel In Bogota, Colombia
Boracay Resort & Spa in the Fascinating Philippines