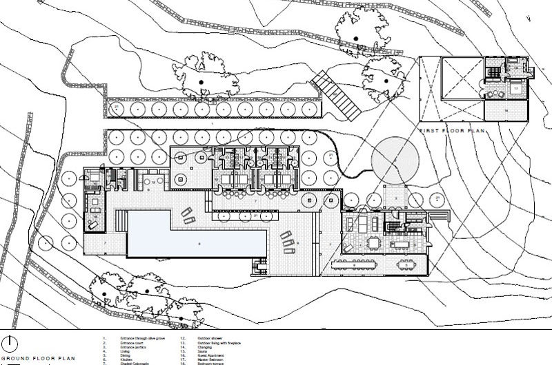
Located in Morna Valley, Ibiza, Spain, this contemporary residence was completed in 2011 by Blacam and Meagher Architects. The property is situated on a hill in the center of the island and it includes the main luxury residence plus a number of smaller annexes. The house is set on the largest of a number of terraces that shape the hill. These terraces were created a long time ago for agricultural purposes, and they are now dominated by beautiful pine trees.
The residence appears to be a collection of juxtaposed cubicles, while the outdoor spaces continue the living areas with arcaded spaces and lovely patios. The architects included traditional and new materials for the building, such as local limestone, ceramic, concrete, stone and wood.
This remarkable project was entirely made by Blacam and Meagher Architects, including the lighting elements, the furniture, and the beautiful landscaping of the terraces, using herbs and other plants. For sustainability purposes, the house features a rainwater collection system that channels water to a centralized tank, where it waits to be reused for different purposes.


















More Similar Articles Like This
Exceptional Coronado Bay Front Estate in California
Exploring the New World of Luxury Hoteling
Plain Geometric Residence Designed by Lidija Dragisic
Amazing Four Seasons Resort Bora Bora
Tips for Choosing the Right Blue Paint Color for Your Dining Room
5 Ways to Turn Your Yard Into a Fancy Space
Behr’s Brilliant Blues: 70 Shades of Stunning Paint Colors
The Superb Maradiva Villas Resort & Spa in Mauritius