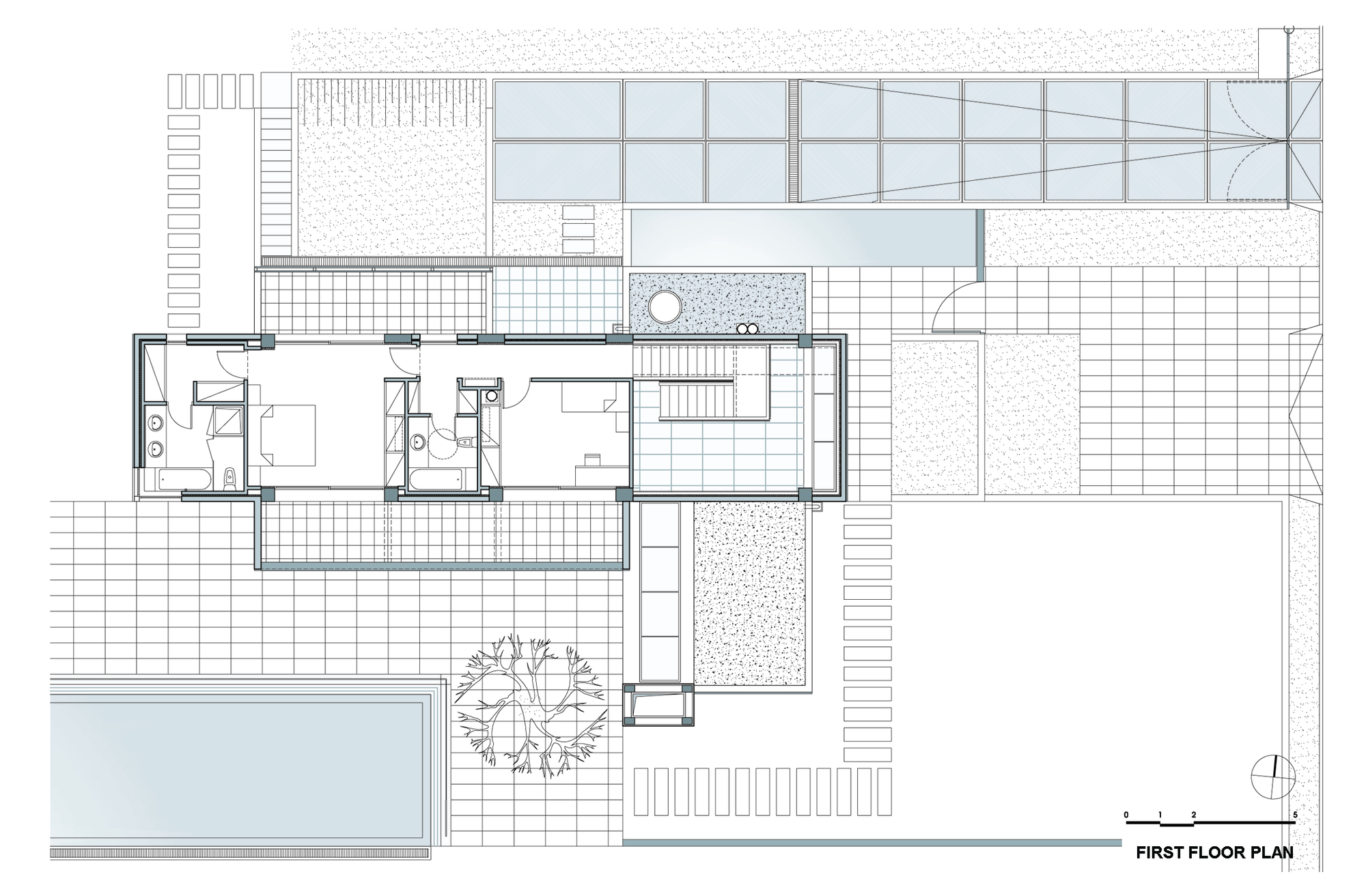
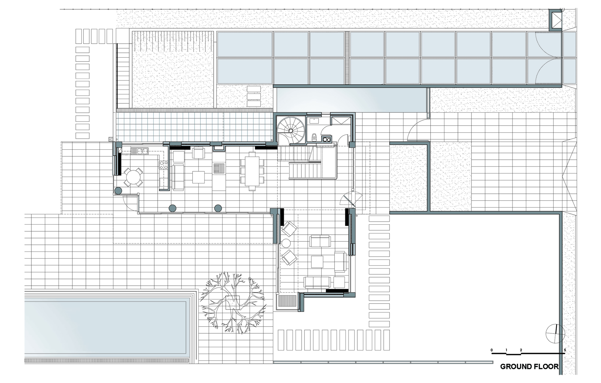
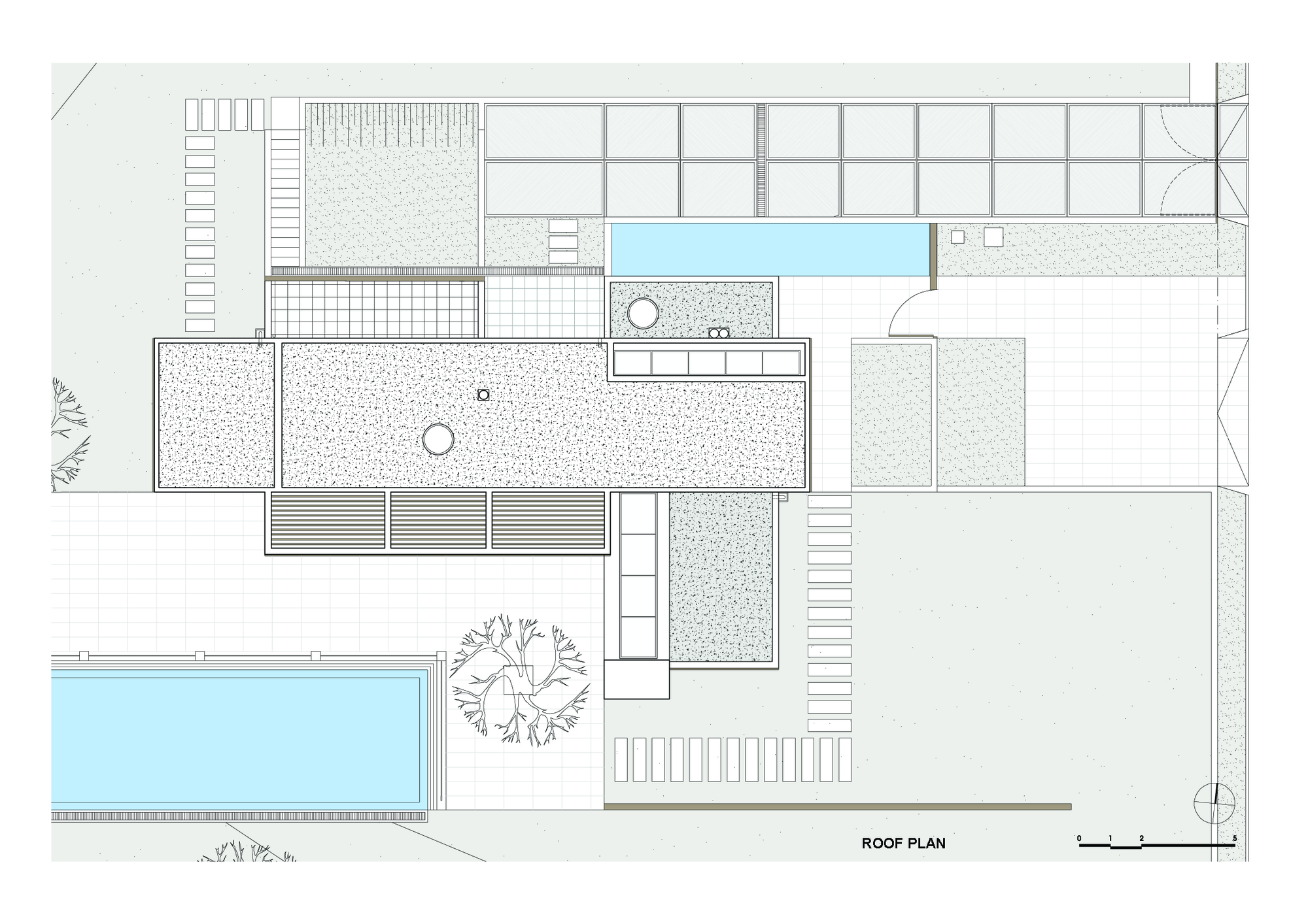
Potiropoulos D+L Architects have completed the residence in Nikaia, Larissa, Greece. The architects opted for an L-shaped building that could be positioned at the corner of the plot in order to have the necessary space for the swimming pool and the garden.’
The main entrance is concealed by the reflecting pool and the atrium with the seasonal flowers, turning in this way the path into a gorgeous route.
The exposed concrete and the wood used on building the shell, create an even stronger connection between the building and the nature surrounding it, while the vertical and the horizontal openings develop a dialogue with the natural light.





























More Similar Articles Like This
Secluded Naladhu Island in Maldives
Amazing Four Seasons Resort Bora Bora
Beach House CN – A Superb Contemporary Home in Peru
Loving Luxury at Mardan Palace Resort, Turkey
Lawn Care Tips, The Basics For Each Season
70 Shades of Green: Benjamin Moore’s Vibrant Paint Colors
Gorgeous And Spacious Home In Sunset Strip
Vibrant Concrete Floor Paint Colors to Elevate Your Space