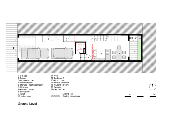
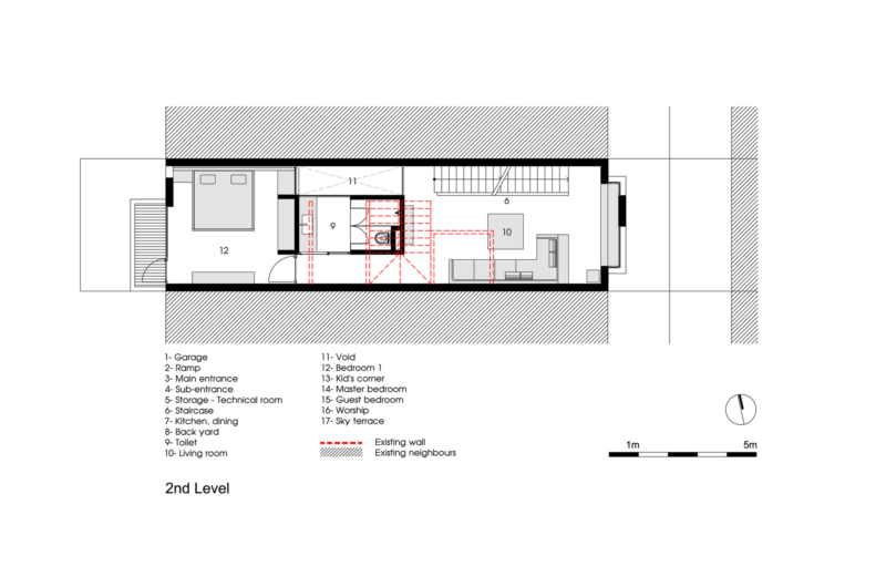
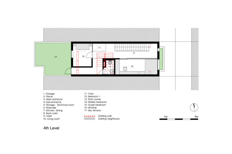
The 4.5×20 House located in Hanoi, Vietnam, was completed in 2012 by AHL architects associates. This home was designed for a young family with children and features the typical design in Vietnam: lost of natural light and ventilation and simple space with a core and two bedrooms.
Its design was based on the requirement of the owners who wanted a garage for two cars, a kitchen on the first floor, a bedroom and a living room on the second floor, the master bedrooms on the third floor, a guest room and a sky terrace and worship on the fourth floor.
An atrium located in the middle of the house that connects the four levels vertically, allows the daylight to enter in the lobbies and all the rooms.
Photos by Anh Duc Le
















More Similar Articles Like This
How Seattle Lawn Care Service Deals With Overgrown Lawns
Astonishing El Tovar by the Sea
Stunning Banyan Tree Ungasan Bali in Indonesia
Gayton Road Residence by Paxton Locher Studio
Opulent Mandarin Oriental Hotel in Paris
The Sophisticated Casa Villa Flamingo in Spain
Marvelous Anantara Dhigu Resort
Dreamy Oceanfront Chateau In West Vancouver, Canada