Spacious and luxurious, the Jiyeh Villa is a fantastic abode that was designed by Accent Design Group and can be found in Jiyeh, Lebanon. With Elie Abs as the main architect, the team that was in charge of this incredible project consisted of Aline Fadous, Roxanne Djaiji, Mira Alassaad, Elie Mattar, Luana Mahfouz, Hassan Nassar and Farah Nasri. However, these architects benefited from the expertise of Wissam Tawil & associates regarding mep consultancy, Jamil Toufic regarding structural consultancy and ADG Interiors for interior design.
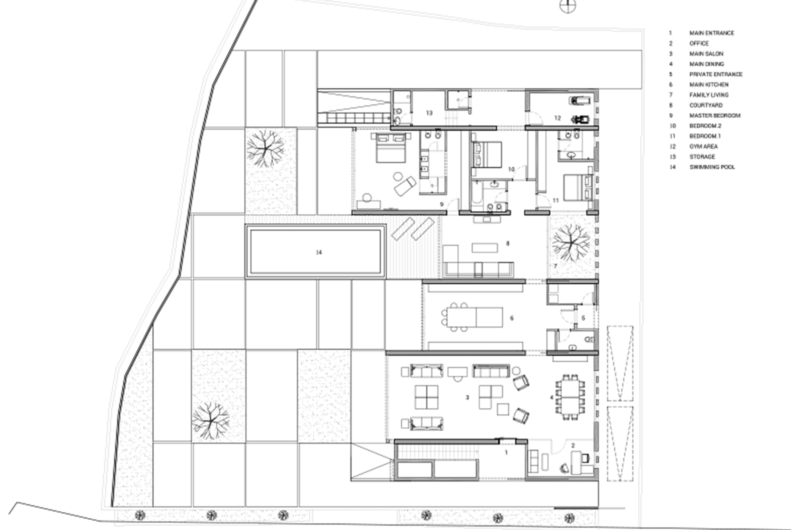
The residence was designed with harmony in mind, and it features 4 volumes that feature their own degree of independence while connecting the private and public areas efficiently. Even though the site itself is sloped, its angle was used to ensure privacy from other nearby buildings and to provide quick and easy access to a cantilevering terrace.
The exceptional sea views can be admired from the rear of the house, which is completely transparent by the way. The sides of the building feature openings that allow the residents to catch glimpses of the outdoors, while a superb swimming pool with purple illumination was placed at the rear of the home, and it can be used for relaxation and entertainment purposes.














More Similar Articles Like This
How Seattle Lawn Care Service Deals With Overgrown Lawns
Behr’s Brilliant Blues: 70 Shades of Stunning Paint Colors
The Superb Maradiva Villas Resort & Spa in Mauritius
Vibrant Concrete Floor Paint Colors to Elevate Your Space
10 Different Types of Blue Paint Colors
Benjamin Moore Exterior Paint: Vibrant Shades for a Striking Home
Tips for Choosing the Right Blue Paint Color for Your Dining Room
Beach House CN – A Superb Contemporary Home in Peru