HS Residence was built on the site of an older residence from the 60s, which had to be demolished because it no longer met modern standards of comfort and eco-friendliness. The new abode was completed in 2014 by Cubyc architects, and it is sheltered from the sun by large canopies. Thanks to the presence of these canopies, the architects were able to implement a series of floor-to-ceiling windows facing the garden without having to worry about indoor temperature fluctuations during the day.
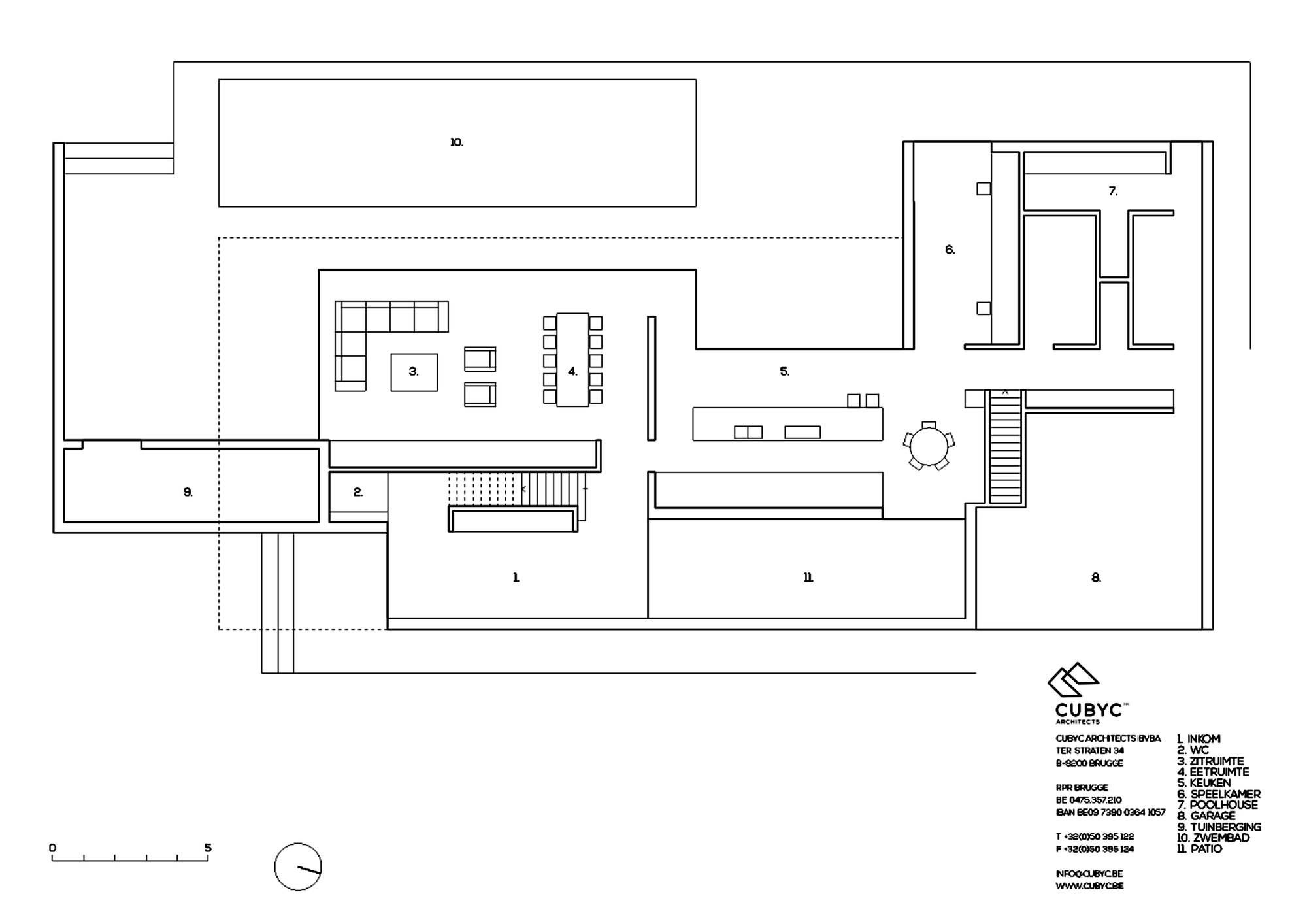
The home features two levels, which are connected by an interior staircase with wooden steps. The living room and dining area are a part of the same open space, and they both benefit from direct access to an outdoor patio and a swimming pool via sliding glass doors. Built in Bruges, Belgium, the HS Residence is a wonderful place to come home to as it stands ready to provide irreproachable living conditions to its owners and their guests.
From the architect:
The house is built on a rectangular plot on in the outskirts of Bruges. The existing bungalow from the 60s was demolished because it did not longer meet the current comfort en energy requirements.. Astheexisting bungalow of the sixties did not longer meet the current comfort and energy standards, the complete building was demolished. The location of the former building has dictated the position of the new property.
The implantation of the new house had to be derived from the plot of the old house.
Large canopies protect the house from overheating. Because of them, the designers were able to use large floor-to ceiling windows on the garden side without compromises.
The canopies do not only control the indoor climate they also create nice covered outdoor spaces that can be used trough out the year.
The perception of the house is a succession of different perspectives and experiences. These different perspectives lead the visitors to explore the property.
Location: Flanders, Belgium
Area: 620.0 sqm
Year: 2013
Photographs: Koen Van Damme, Bart Musschoot
Stability: Ingenieursbureau Meijer bvba
Landscaping: Buro voor buitenruimten
Interior Design : CUBYC architects


















More Similar Articles Like This
Marvelous Anantara Dhigu Resort
Boracay Resort & Spa in the Fascinating Philippines
Extraordinary Constance Halaveli Maldives Resort
Pure Perfection: Discover the Top White Paint Colors for a Flawless Décor
The Sophisticated Casa Villa Flamingo in Spain
Spectacular Rooftop Apartment by Innocad
Wonderful Yachting Club Villas at Elounda Beach by Davide Macullo Architects
The JKC1 House in Bukit Timah, Singapore