Situated in Stuttgart, Germany, House Heidehof was completed in 2008 by Alexander Brenner Architects studio. The designers managed to incorporate the building into the triangular-shaped plot, by placing it parallel to the road. The wood-clad garage wall, the pool walls rising in front of the house and the layers of garden offer privacy to the owners, protecting them from any unwanted looks.
After crossing the entrance gate, one can see a beautiful garden, and a swimming pool stretching to the left. The sunlight reflecting on the water flows into the living area through a window strip placed at the floor level.
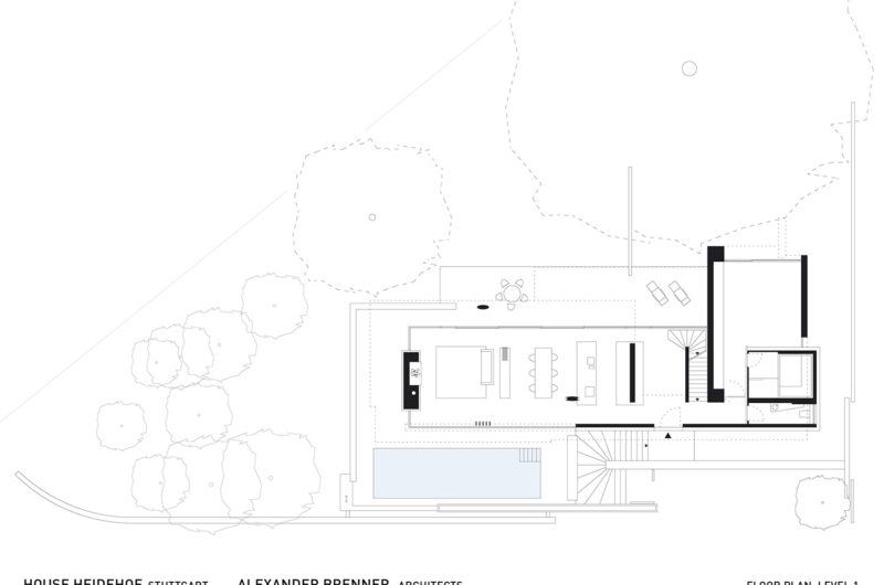
The living area, including the kitchen and dinning space, is placed on the ground floor, while the bedrooms, bathrooms and a roof garden can be found on the upper floor. All the rooms offer beautiful views of an old plane tree. A simple and efficient solution was found for the storage problems. The designers created a copper-clad unit along the north wall, which conceals all appliances and building materials, and also serves as a storage space for different objects.









































More Similar Articles Like This
Outstanding Bodrum Houses in Yalikavak, Turkey
A Superb Italianate Mansion in California, USA
Exceptional Coronado Bay Front Estate in California
Beautiful Apartment in Stockholm for $1 Million
Lawn Care Tips, The Basics For Each SeasonÂ
Pure Perfection: Discover the Top White Paint Colors for a Flawless Décor
70 Shades of Green: Benjamin Moore’s Vibrant Paint Colors
Boracay Resort & Spa in the Fascinating Philippines