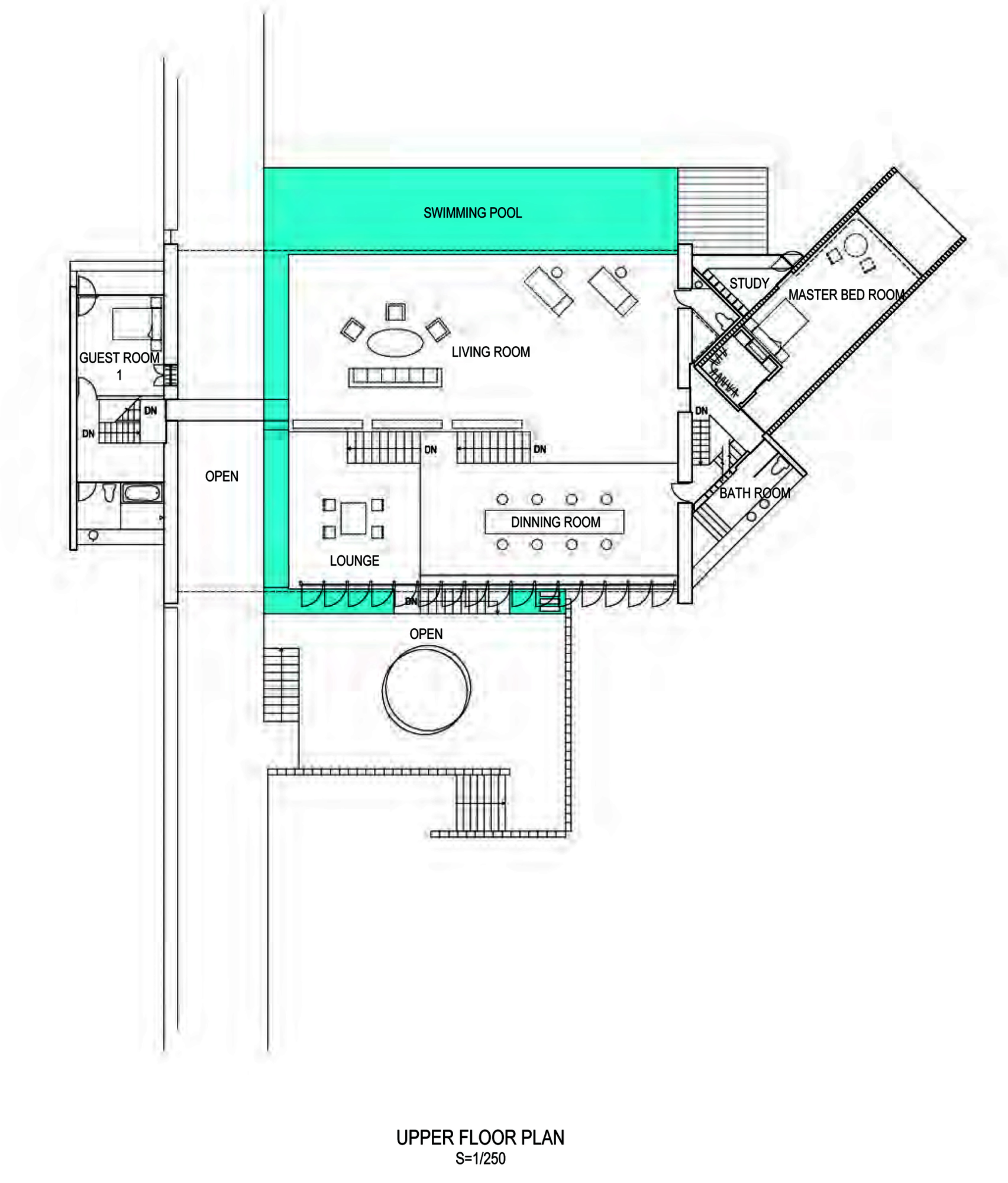
Shigeru Ban Architects have designed Villa Vista, an 825 sqm project located in Weligama, Sri Lanka. The house is sited on a hilltop facing the ocean, the floor, the walls and the ceiling framing three distinct views.
The first is the view of the ocean seen from the jungle in the valley, provided by the external corridor. The second one is the horizontal scenery of the ocean from the hilltop framed by the enormous roof, and the third and last one is the view of the cliff that is viewed through a square frame comprised of 4 m solid wood in the main bedroom.





















More Similar Articles Like This
Plain Geometric Residence Designed by Lidija Dragisic
10 Different Types of Blue Paint Colors
The Sophisticated Casa Villa Flamingo in Spain
Loving Luxury at Mardan Palace Resort, Turkey
Boracay Resort & Spa in the Fascinating Philippines
Exceptional Coronado Bay Front Estate in California
Behr’s Brilliant Blues: 70 Shades of Stunning Paint Colors
Heavenly Lily Beach Resort & Spa In Huvahendhoo, Maldives