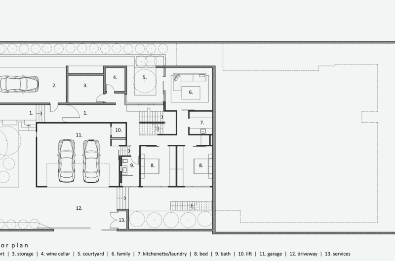
The Boarding House was named as such because its main living arrangements are based on 5 “boarding rooms” that used to be a part of an old pre-war building. The rooms were transformed and implemented into a brand new contemporary home, which was created for a large family. The residence can be found in Brisbane River, Queensland, Australia, and it was designed by experts from Shaun Lockyer Architects with Shaun Lockyer himself as the architect in charge. The project architect was Neva Wethereld, the lighting systems were implemented by Neva Wethereld Designs and the stone elements were supplied by Eco Outdoor.
Built in 2013, this modern masterpiece can be found on Teneriffe Hill, which means that it boasts fabulous views of the city and of the nearby river. The Boarding House represents a blend of modern-age design and centuries of history – a combination that ensures character and originality. Its main interior highlights include high quality furniture pieces, modern appliances and outstanding decors based on natural plants.
Photos by Scott Burrows
From the Shaun Lockyer Architects:
The Boardinghouse involved the amalgamation of five ‘boarding rooms’ in a pre-war house into a contemporary home for a large family in inner city New Farm.
The house is nestled in a corner on Teneriffe Hill where it enjoys an unexpected combination of river views, city views, warehouse neighbours and character housing while equally having complete privacy with its own elevated north east courtyard.
The resulting architecture is an overt statement about the possibilities of modern architecture juxtaposed with one hundred years of history. While this approach was a bold move with regards to aesthetics, it has equally retained and reinstated the character portion of the house and protected this for future generations to enjoy.















More Similar Articles Like This
Seamlessly Apartment by the Beach by ZZ Architects
Green Gables Home In Fairfield, Connecticut, United States
Spectacular Rooftop Apartment by Innocad
Gorgeous And Spacious Home In Sunset Strip
10 Different Types of Blue Paint Colors
Plain Geometric Residence Designed by Lidija Dragisic
Outstanding Bodrum Houses in Yalikavak, Turkey
Santa Barbara Style Home in Paradise Valley, Phoenix