This two-story holiday home is dubbed FT House, and it can be found in Sao Paulo, Brazil. It was designed and built in 2014 by a team of architects from Reinach Mendonça Arquitetos Associados, and it flaunts 10,397 square feet of living space. Its ground floor and basement structures were built using concrete, while its load bearing walls are clad in stone for utmost sturdiness.
The private areas such as the bedrooms can be found at the upper floor, which features a laminated wood frame as well as metal acoustic tiles. Depending on the owner’s needs and preferences, they can choose to close or open the wooden lattice panels found on the northwest side of the abode. The northwest and northeast parts of the residence offer exquisite views of the countryside thanks to a series of large glass panels and balconies.
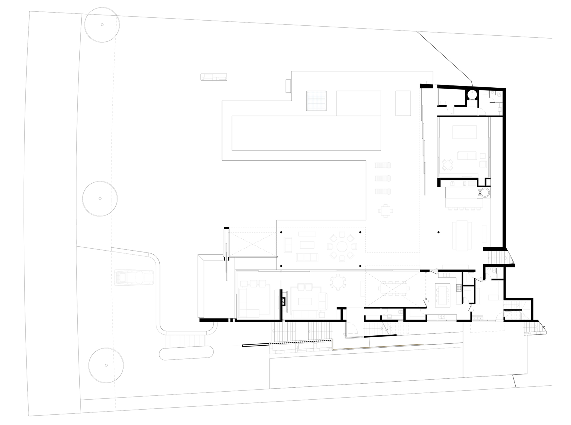
The southwest part is used for car access and primary circulation.
Project Year: 2014
Photographs: Nelson Kon
Interiors: Andrea Castanheira
Landscape: André Paoliello Paisagistas Associados
Lighting: Foco Luz e Desenho
Structure: Benedicts Engenharia
Wood Roofing: Ita Construtora
Electrical And Plumbing: Pessoa e Zamaro
Construction: LTC Construções
From the architect:
In this holiday and weekend home in Sao Paulo, a steep terrain and a nice view were the main elements defining the location and volume of the project.
The southwest side of the house concentrates all circulation and vehicle access to connect the huge gap that characterizes the house due to its rich volume, with few openings.
On the other hand, to the northeast and northwest with a nice view of the countryside, is where the house opens with large glass panes and balconies facing towards the courtyard pool and leisure areas.
The structure of the basement and ground floor was designed in concrete and load bearing walls clad in stone. The upper floor, which houses the bedrooms, is all laminated wood frame and covered by metal acoustic tiles.
According to the best views of the northwest side, the project proposes large wooden lattice panels with steel frame that are flexible and can open or close entirely according to the requirements.
The proposal to design the entire top floor in a precast wood structure with a metal roof followed some guidelines of lightness that we wanted for the three floors, even on a site with a steep slope. Thus we define two very strong horizontal slabs, identifying the collective social areas with exposed concrete and intimate areas with wood.















More Similar Articles Like This
The Superb Maradiva Villas Resort & Spa in Mauritius
Behr’s Brilliant Blues: 70 Shades of Stunning Paint Colors
6 Garden and Lawn Tips to Get Ready for Spring
Best paint colors for the living room
Exquisite Crossacres Mansion In Surrey, England
Dreamy Oceanfront Chateau In West Vancouver, Canada
Santa Barbara Style Home in Paradise Valley, Phoenix
The JKC1 House in Bukit Timah, Singapore