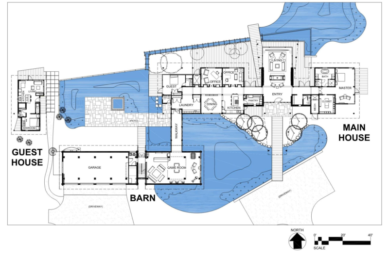
The EHA Family Trust Residence located in Wilson, Wyoming, United States is a 3,988 sqft residence finished in 2011 by Ward+Blake Architects. The house was elevated three feet above existing grade because of the low lying wetland.
The incredible view of the mountains surrounding the house is available even though there are mature trees all around. In order to benefit of low energy consumption, it was used a loop ground source heat pump for both heating and cooling.
The weather conditions here are very difficult and because of that, the architects choose to protect the house by using materials that required no maintenance.
Aside from its beautiful aspect, this home is also a money saver, the electrical consumption being reduced with the help of a specifying LED technology.
By choosing to own such a property, your lungs will breathe health and your eyes will only see beauty.
Photos by Roger Wade Studios














More Similar Articles Like This
5 Ways to Turn Your Yard Into a Fancy Space
Secluded Naladhu Island in Maldives
70 Shades of Green: Benjamin Moore’s Vibrant Paint Colors
Lawn Care Tips, The Basics For Each Season
Amazing Four Seasons Resort Bora Bora
A Superb Italianate Mansion in California, USA
Dreamy Oceanfront Chateau In West Vancouver, Canada
Shadowed Depths: Vintage-inspired Paint Colors for Dark Basements