Casa 7A is a project that was recently completed by Aquitectura en Estudio and Natalia Heredia. This country house is located in the town of Villeta, Colombia.
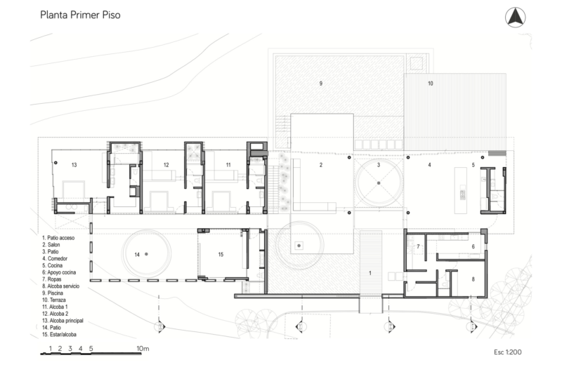
The house includes a succession of voids and blocks gathered under the same roof that is open towards the mountains on one side and towards several patios on the other.
Towards the road, the structure seems to be completely closed, fact that helps the owners get their necessary privacy.
The social areas provide magnificent views of the mountains on one side and provide access to the patio on the other.
Because of the north-south orientation of the house, the facades are protected from the sun, while the swimming pool and the terrace areas enjoy permanent exposure to the sun.
It’s an eco-friendly project due to the fact that it recycles the rain water for vegetation and has a solar panel heating system for the water in the swimming pool. Another important aspect is that the construction materials used in erecting the house are mostly local and natural: stone, renewable timber and concrete.
Photos by David Uribe



















More Similar Articles Like This
Different Types Of Foundations For Summer Houses and Garden Buildings
Behr’s Brilliant Blues: 70 Shades of Stunning Paint Colors
Opulent Mandarin Oriental Hotel in Paris
Vibrant Concrete Floor Paint Colors to Elevate Your Space
Benjamin Moore Exterior Paint: Vibrant Shades for a Striking Home
Santa Barbara Style Home in Paradise Valley, Phoenix
Secluded Naladhu Island in Maldives
Amazing Four Seasons Resort Bora Bora