The 65BTP House was sketched out by ONG&ONG Pte Ltd, and it can be found within the beautiful city-state Singapore. Completed in 2013, this contemporary masterpiece covers an area of 15,575 square feet, and it is surrounded by a large garden that features an old pre-war rain tree.
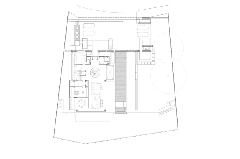
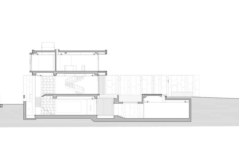
Even though its interior living arrangements are private and cozy, the residence still flaunts a tight connection to the beautiful outdoors thanks to a series of large floor-to-ceiling windows and outstanding décor elements based on natural plants. The entrance features a large wall made out of granite that impresses with a series of vertical holes, which are meant to provide glimpses into the garden without showing off its magnificence all at once. The ground level includes the living areas and the dining areas, and it boasts a seamless connection with the garden and with a lap pool.
The first floor is linked to the second one via a vertical staircase, which provides quick and easy access to the bedrooms and the private family area. The lavish master bedroom flaunts its own study, bathroom and walk-in wardrobe space that can be extended in order to create a large boudoir. The opposing area of the master bedroom houses the children’s accommodations, while a splendid balcony encircles the entire floor and ensures great views of the garden.
The main entertainment and relaxation areas can be found in the basement, which includes a spa, a movie room and a special outdoor area that can be used for barbecuing. The rain tree can be observed in its entire splendor even from the basement thanks to a series of skylights that ensure a great flow of natural light within.
Photos by Derek Swalwell




























More Similar Articles Like This
Unique Click Clack Hotel In Bogota, Colombia
Opulent Mandarin Oriental Hotel in Paris
Pure Perfection: Discover the Top White Paint Colors for a Flawless Décor
Wonderful Yachting Club Villas at Elounda Beach by Davide Macullo Architects
The Superb Villa Verai on Phuket Island, Thailand
Benjamin Moore Exterior Paint: Vibrant Shades for a Striking Home
Marvelous Anantara Dhigu Resort
Spectacular Rooftop Apartment by Innocad