The Agua House located in Buenos Aires, Argentina was designed by Barrionuevo Sierchuk Arquitectas and combines modern architecture with the core element of the home – a rustic stone wall.
It’s a 4,840 sq. ft. residence designed for a couple with children who needed space and freedom of movement.
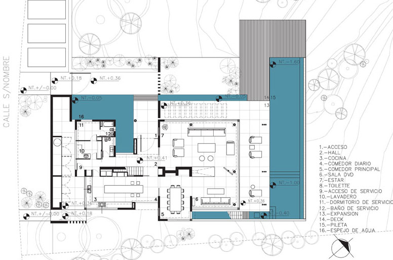
On the ground floor you will notice a program of very big reception areas protected by big wooden sliding doors, while in the first floor you will see the master bedroom and a small bedroom for the guests.
Basically, the house was created based on two stone walls that interact all over the home.
It has the name of Agua Home because it’s surrounded by water, agua in English meaning water.















More Similar Articles Like This
Amazing Four Seasons Resort Bora Bora
Contemporary BO House In Envigado, Antioquia, Colombia
Unique Click Clack Hotel In Bogota, Colombia
Opulent Mandarin Oriental Hotel in Paris
Lovelli Residence: Mediterranean-Style Dwelling in Bali
Santa Barbara Style Home in Paradise Valley, Phoenix
Gorgeous And Spacious Home In Sunset Strip
Exceptional Coronado Bay Front Estate in California