Sketched out by CHROFI and built in 2013 in North Narrabeen, Australia, this luxurious home replaces an older and less impressive cream brick abode from the 1970s. Built in close proximity to the Narrabeen Lagoon, the residence features a broad façade as well as a floating skirt detail and dark timber cladding, all of which contribute to a dramatic, modern appearance.
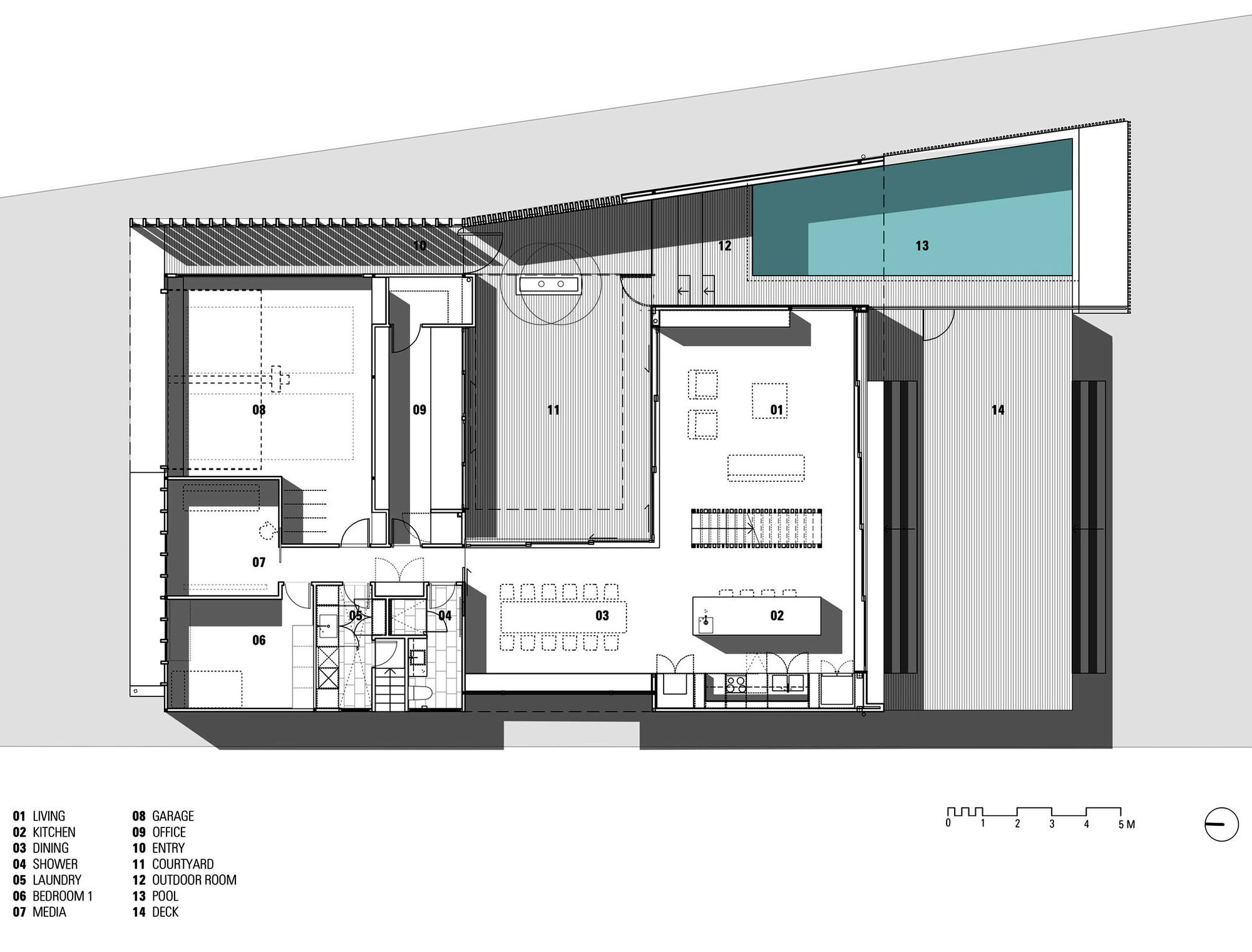
The primary public areas such as the dining room, living room, kitchen, pool and study are organized around a central courtyard. Aside from linking the aforementioned spaces, the courtyard also welcomes plenty of natural light, air and warmth at the core of the abode. With 3,229 square feet of living space, this house is spacious enough to accommodate a family in superb conditions. The ground floor includes a kitchen with state-of-the-art appliances as well as a living room with a comfortable sofa and a grand piano.
When it comes to views, the study is definitely the best place to admire them from. The living room, courtyard, lagoon side deck, lagoon and island are all a part of the same breathtaking panoramic vista.
From the architect:
The Narrabeen House is located on the edge of Narrabeen Lagoon and is fortunate to have outlook across water to an untouched island dense with casuarinas.
By contrast, the street context is unremarkable without the slightest hint of the lagoon beyond the houses lining the street and manages to give the impression of being deep in suburbia.
The house is new and replaces a former 1970s cream brick house that functioned poorly and like many other houses from the time, did little to engage with the unique environmental qualities of the lagoon.
In starting this project, we clearly wanted to re-dress the connection with the lagoon and island, but also found ourselves drawn to the suburban qualities of the street and this dramatic contrast between the front and back of the property.
This led us to think about the project within the framework of the ‘suburban ideal’ – a framework that would allow the house to address the street as any other suburban house would, while inwardly pursuing the ideals of oasis and retreat where the water experience could be used to maximum impact – in effect, amplifying the current contrast between street and lagoon.
From the street, the house’s composition is built around the entrance, driveway and garage like any typical suburban house however the impact of these domestic elements is diffused by melding them into a singular architectural expression and form. The broad facade combined with the floating skirt detail give the house a horizontal proportion and even though the dark timber cladding gives the building a ‘stealth’ like appearance, it still withholds the drama of the lagoon beyond.
This sets up two key planning strategies.
Firstly, a central courtyard is introduced as the principal organising element for the planning with all of the house’s key public spaces – living room, dining room, kitchen, study and pool – grouped around the courtyard to connect these spaces visually, and physically when the courtyard walls are opened up. The arrangement promotes a socially inclusive dynamic as well as extending the spatial opportunities of the house. The courtyard also has a significant environmental role bringing sun, light and air into the centre of the house.Secondly, the planning is composed to deliberately isolate the occupant from the suburban surrounds to heighten the sense of oasis and privateness. This process begins at the street bringing visitors through a succession of exterior spaces that gradually compress and remove the street context through a composition of fences, full height screens and thresholds. The entry sequence eventually terminates at a solid doorway where the sense of intrigue peaks. Rather than entering into a hallway, one arrives in the courtyard where the full extent of the private domain, the lagoon and island are revealed and any sense of the outside world removed.
The house also has an unusual sectional arrangement driven partly by the requirement to elevate the interior 1.2m above ground level to safeguard against flooding but also by the desire to have open plan spaces with dual aspect – north for sun and south for the view. Whilst this introduces issues with the scale relationship of the house to its neighbours, it enables a more interesting multi- level relationship between interior and exterior living spaces to occur. This combination of sectional interplay with the layout of spaces in relation to the courtyard is what enables the layering of spaces to occur – it is possible to view the courtyard, living room, lagoon side deck, lagoon and island as backdrop in just one vista from the study.
Flood raising 1200mm helps by introducing level changes that step and advantage the deeper views Porosity radically increases experience of exterior framed views, elevated The vistas from the key living areas and courtyard are composed to heighten the sense of connection with the lagoon and place the island as the key visual terminating feature.
The materiality further develops the notion of oasis with a simple calming palette of warm natural materials that have a beneficial environmental effect while connecting the house with the natural environment of the lagoon and island.
Architects: CHROFI
Location: North Narrabeen NSW 2101, Australia
Area: 300.0 sqm
Project Year: 2009
Photographs: Simon Whitbread
Service: Design, Documentation & Site Services
Builder: Greybuilt
Collaborators: William Morgia, Cost Plus, ExParrot
Cost: AU$ 1.5 m (total incl. pool and landscape)
Start & Completion Date: 10.2005 – 10.2009











More Similar Articles Like This
Tips for Choosing the Right Blue Paint Color for Your Dining Room
The JKC1 House in Bukit Timah, Singapore
Spectacular Rooftop Apartment by Innocad
Green Gables Home In Fairfield, Connecticut, United States
Santa Barbara Style Home in Paradise Valley, Phoenix
6 Garden and Lawn Tips to Get Ready for Spring
Beach House CN – A Superb Contemporary Home in Peru
Loving Luxury at Mardan Palace Resort, Turkey