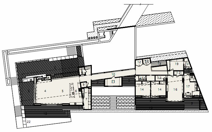
Originally, the Genius Loci House was a horse ranch, but with the help of talented Bates Masi Architects, was turned into a spectacular vacation home. Located at one of the highest altitudes in Montauk, it amazes the clients due to the characteristics of the area that makes it unique and worth visiting.
The parabolic roof causes an optical illusion that makes you want to take a second look, as many other details do. The whole house is full with architectural details that take the house out of the box, such as the wood screen covered bridge, the cedar screen of the bridge, a milled bluestone screen, all these being elements that capture the unexpected.
The mountain always conserves wonderful experiences for those who choose to visit, but adding to it an architectural jewelry, makes everything even better.



















More Similar Articles Like This
Santa Barbara Style Home in Paradise Valley, Phoenix
Opulent Mandarin Oriental Hotel in Paris
Amazing Four Seasons Resort Bora Bora
Heavenly Lily Beach Resort & Spa In Huvahendhoo, Maldives
Loving Luxury at Mardan Palace Resort, Turkey
Unique Click Clack Hotel In Bogota, Colombia
Stunning Sustainable Home in Costa Rica by SPG Architects
Pure Perfection: Discover the Top White Paint Colors for a Flawless Décor