The residence that we’re about to present was designed by Specht Harpman Architects, and it was built in 2013 near the Saugatuck River in Weston, Connecticut, USA. It offers 2,400 square feet of living space and boasts a unique design that allows it to blend with its natural surroundings as if it is a part of the site itself.
The connection between the indoor and outdoor spaces was achieved with the help of views and material continuity. Since the residence features multiple, large windows, it makes sense that its décor elements would be scarce as nature itself provides plenty to look at and admire. The interior atmosphere is a cozy one thanks to comfortable sofas, fireplaces and wooden finishes. Outside, a terrace, loungers and a swimming pool stand ready to provide fantastic moments of relaxation and entertainment.
This modern house offers irreproachable living conditions as well as utmost privacy in the middle of nature, and it looks like an absolute delight to inhabit.
From the Specht Harpman Architects:
The Weston Residence nestles in a valley adjacent to the Saugatuck River. In plan and section, the elements of the house engage the site in a way that purposefully blurs the transition and distinction between the built and natural environment.
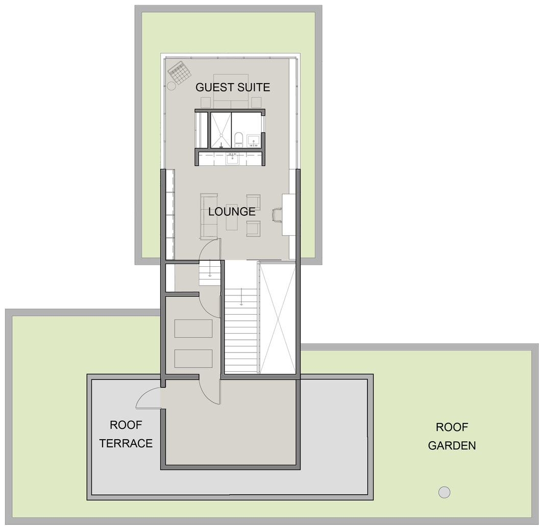
As the house is approached from a road that begins high on a cliff above, the roofscape—or fifth façade— becomes a critical element of the design. Terraced planes planted with year-round, region-specific succulents step down the hill. Bedrooms project out into these roof gardens, giving a feeling of being fully immersed in the landscape. The planted roofs are also integral to the high-performance building envelope.
Interior and exterior spaces are joined through views, portals, and material continuity. A glass-backed fireplace provides an elegant surprise. Like other glass houses, the landscape becomes the “decoration” for the rooms, playing with transparency during the day and reflectivity at night.















More Similar Articles Like This
Unique Click Clack Hotel In Bogota, Colombia
Pure Perfection: Discover the Top White Paint Colors for a Flawless Décor
6 Garden and Lawn Tips to Get Ready for Spring
Wonderful Yachting Club Villas at Elounda Beach by Davide Macullo Architects
Plain Geometric Residence Designed by Lidija Dragisic
Opulent Mandarin Oriental Hotel in Paris
Loving Luxury at Mardan Palace Resort, Turkey
The Superb Maradiva Villas Resort & Spa in Mauritius