The modern and luxurious Casa Juncal & Rodney was designed by Pepe Gascon Arquitectura and can be found in a place called Carrer dels Torradors in Girona, Spain. Featuring no less than 3,885 square feet of space, this stunning residence comes with a price tag of about $702,000, but given its unique location and splendid design, it is arguably worth even more than that.
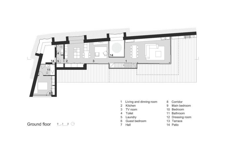
The home was built parallel with the access road, and it is actually sheltered by it. As such, the entrance can be found on the upper level and is directly connected to the aforementioned roadway, while the level below features a series of small courtyards, gardens and the public living arrangements. The 2 levels distinguish themselves with unique designs: one of them boasts opacity and compartmentation while the other features transparency and utmost openness.
Inside, a staircase provides internal connection for these 2 levels, and it also ensures quick and easy access to the most important areas of the abode without much effort.
Photos by José Hevia



















More Similar Articles Like This
Behr’s Brilliant Blues: 70 Shades of Stunning Paint Colors
Exquisite Crossacres Mansion In Surrey, England
The Superb Maradiva Villas Resort & Spa in Mauritius
Shadowed Depths: Vintage-inspired Paint Colors for Dark Basements
Best paint colors for the living room
Astonishing El Tovar by the Sea
Different Types Of Foundations For Summer Houses and Garden Buildings
How Seattle Lawn Care Service Deals With Overgrown Lawns