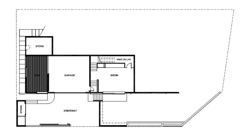
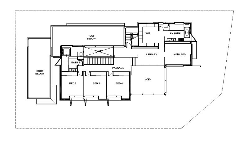
The architects from Bureau^Proberts are the ones who designed the beautiful three-story Patane Residence, situated in Newmarket, Brisbane, Australia.
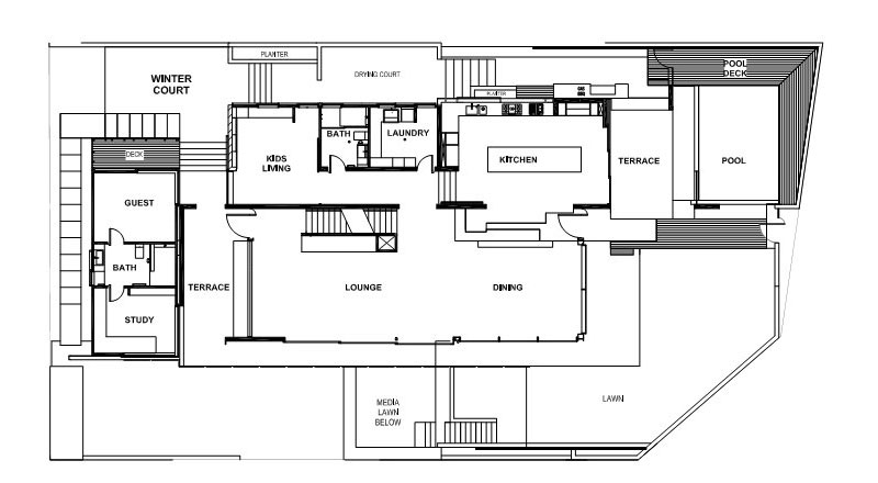
The house was built for a young family, and is located on the crest of a hill, offering beautiful views of Mount Coot-tha and Brisbane city. Concrete and timber are the main materials used for the construction. The concrete house is made of several connected pavilions, offering both privacy and interaction at the same time. The timber used alludes to the 19th and 20th century Newmarket’s dwellings.
The middle level of the building is in fact a transparent terrace, which connects the living space, play area and the street. The residence was built as a perfect place to spend time with family and friends in a homely surrounding.
























More Similar Articles Like This
Gorgeous And Spacious Home In Sunset Strip
Amazing Four Seasons Resort Bora Bora
Gayton Road Residence by Paxton Locher Studio
The Sophisticated Casa Villa Flamingo in Spain
Dreamy Oceanfront Chateau In West Vancouver, Canada
Exceptional Coronado Bay Front Estate in California
Spectacular Rooftop Apartment by Innocad
Secluded Naladhu Island in Maldives