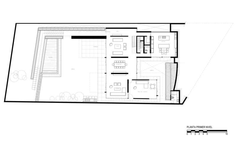
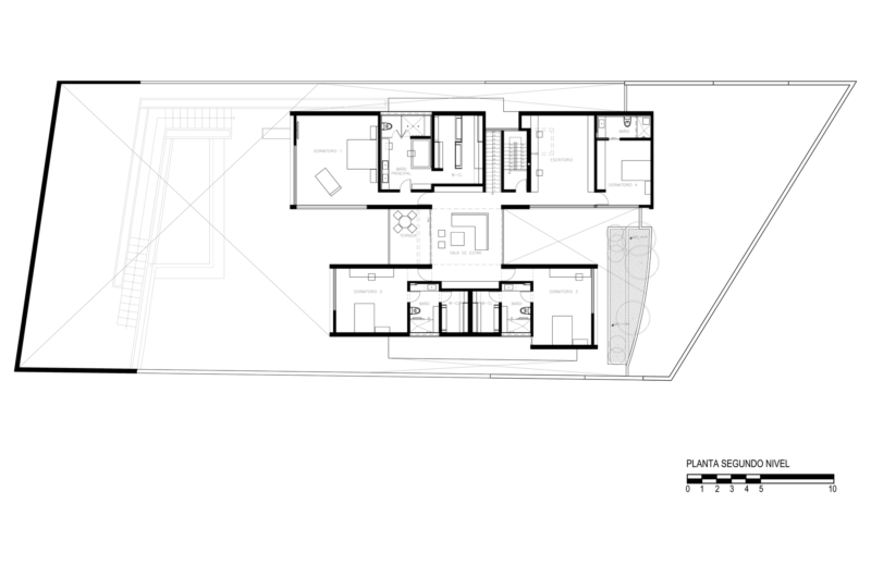
Seinfeld Arquitectos completed the Golf House in 2012. It is located in La Molina, Lima, Peru, on a slope property opening onto the golf course scenery.
It is divided into two volumes parallel to the landscape which allow housing social events in the open areas and the terraces in the first level. Because of the large floor-to-ceiling glass windows, the volumes and visually connected between them and with the hill in the back with the golf course.
This beautiful residence abounds in light, space and freedom of movement.

















More Similar Articles Like This
Boracay Resort & Spa in the Fascinating Philippines
These Top Tips Will Help You to Turn Your Garden into the Ultimate Glamping Site!
Behr’s Brilliant Blues: 70 Shades of Stunning Paint Colors
Plain Geometric Residence Designed by Lidija Dragisic
A Superb Italianate Mansion in California, USA
Different Types Of Foundations For Summer Houses and Garden Buildings
Extraordinary Constance Halaveli Maldives Resort
Unique Click Clack Hotel In Bogota, Colombia