This fantastic residence was designed by Jackson Clements Burrows Architects and was built in 2009, featuring 310 square meters (3,337 sq. ft.) of living space. The house was originally a beach shack in pretty bad shape, but was transformed into a very practical and beautiful home that is able to accommodate an entire family in perfect conditions.
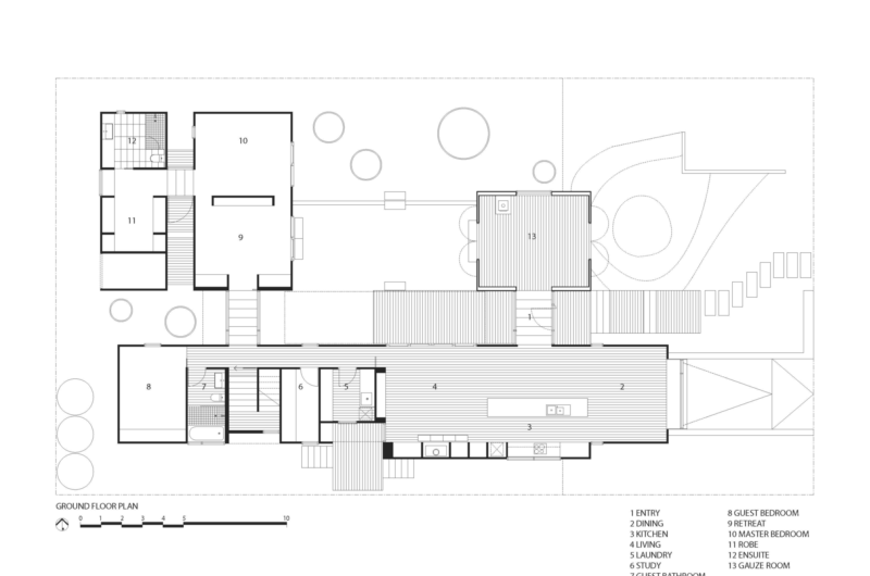
The layout is divided into three main pavilions that are separated by glazed connections to the northwest, northeast and south, all enveloping a courtyard garden to the north. The master bedroom and the retreat are placed in the northwest pavilion along with an outdoor shower, while the southern pavilion contains guest accommodations, a study, laundry facilities and the main living space that boasts beautiful views of the nearby river. The northeast pavilion flaunts a shaded room that benefits from two large barn doors to the east and west that provide ventilation when opened during the summer and warmth and shelter when closed during the winter. This room is faced towards the street side, and it is not separated by a fence, in order to maintain a connection with the passersby and the neighbors.
The residence makes use of eco-friendly technologies such as solar energy for heating purposes and rainwater for the washing machines, toilets and gardens.















More Similar Articles Like This
The JKC1 House in Bukit Timah, Singapore
Stunning Sustainable Home in Costa Rica by SPG Architects
Exquisite Crossacres Mansion In Surrey, England
Lawn Care Tips, The Basics For Each SeasonÂ
The Sophisticated Casa Villa Flamingo in Spain
Saguaro Palm Springs by Joie de Vivre
Secluded Naladhu Island in Maldives
Lovelli Residence: Mediterranean-Style Dwelling in Bali