Just a quick glace is all it takes to realize that the Boandyne House is a premium house. Its contemporary design was sketched out by SVMSTUDIO, and it was built in 2014 in Victoria, Australia. The architects wanted to create a cozy, spacious and luxurious abode that would benefit from a connection to the outdoors, more specifically to the sky. This was a challenging prospect considering the property’s slope, but they eventually managed to fulfill all expectations by implementing three diagonal voids.
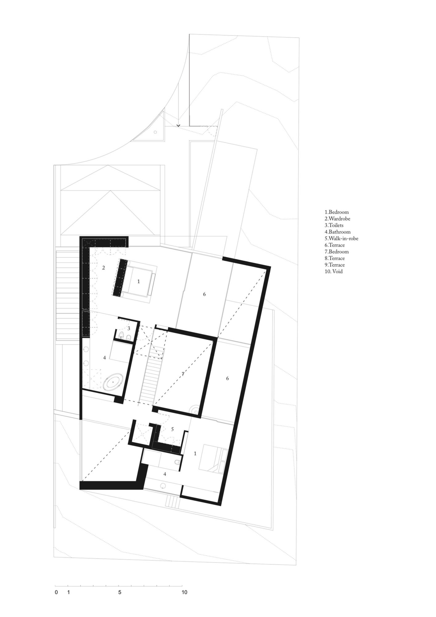
These voids allow the upper level to communicate with the sky thus welcoming plenty of natural light within the home. The ground level is more “down-to-earth” in a literal way as it features a direct connection to a garden. The upper floor includes two bedrooms, a bathroom, a wardrobe and a few terraces, while the ground floor incorporates the garage, an annex room and storage facilities.
The owners and their guests are able to enjoy 5,381 square feet of living space as well as multiple amenities such as fireplaces, a swimming pool and state-of-the-art kitchen appliances.
From the architect:
The house is located at the end of a cul-de-sac and rising 3 metres (10 feet) from the front (north) to the back (south) of the parcel, connected to the site by means of two directions; the alignment of the neighbouring houses to the west and perpendicular to the slope grade which exploits the SW/NE diagonal of the parcel.
With difficult overlooking constraints due to the position of the property on the slope we decided to create an intimate home filled with light and space and a strong relationship with the sky by means of three voids organised along the diagonal of the property.
Whilst the ground floor has a strong relationship with the earth with views of the garden and contrasting light streaming in from above, the upper level elevates the viewpoint, a celestial level that frames the sky just above the horizon line. Through this subtle relationship between the earth and the sky we intend to create a home where the limits of space and the play on light and shade are enough decoration and come together as one clear expression.



















More Similar Articles Like This
Exquisite Crossacres Mansion In Surrey, England
The Superb Maradiva Villas Resort & Spa in Mauritius
Exceptional Coronado Bay Front Estate in California
6 Garden and Lawn Tips to Get Ready for Spring
Stunning Banyan Tree Ungasan Bali in Indonesia
Benjamin Moore Exterior Paint: Vibrant Shades for a Striking Home
Wonderful Yachting Club Villas at Elounda Beach by Davide Macullo Architects
These Top Tips Will Help You to Turn Your Garden into the Ultimate Glamping Site!