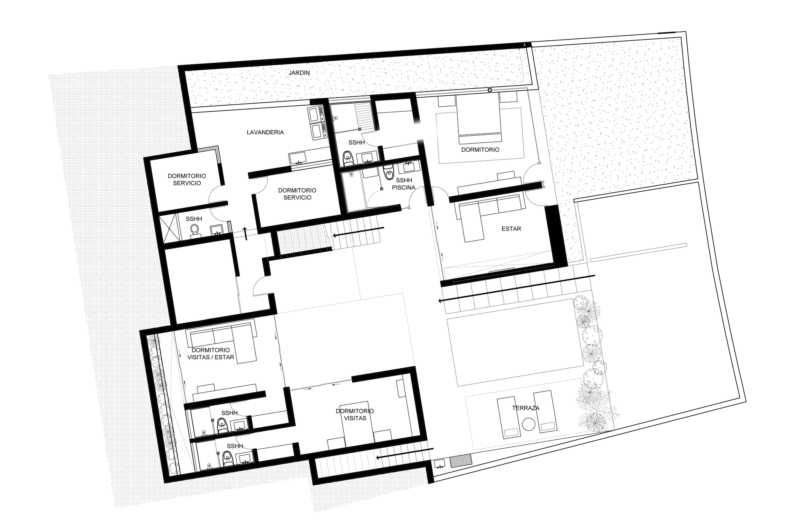
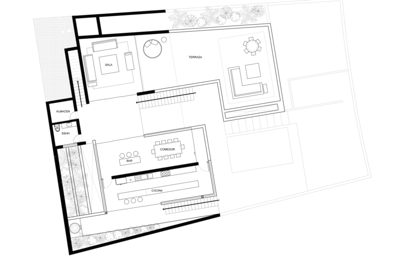
The Deployed House located in Lima, Perúis a 495.0 sqm estate designed by Seinfeld Arquitectos. It was needed some digging in the ground in order to fit the project because of the entrance from the bottom.
It consists of three volumes that grow in height in a spiral manner, one of them serving as a large terrace for the other one. The first volume accommodates the child’s bedroom with living room and the roof is the terrace of the room.
Because the coastal view is seen diagonally from the house, the corners are always released.






















More Similar Articles Like This
Beautiful Apartment in Stockholm for $1 Million
Exceptional Coronado Bay Front Estate in California
Santa Barbara Style Home in Paradise Valley, Phoenix
Heavenly Lily Beach Resort & Spa In Huvahendhoo, Maldives
Shadowed Depths: Vintage-inspired Paint Colors for Dark Basements
Superb Luxury Penthouse in Portomaso, Malta
Spectacular Luxury House in Sarasota, Florida by DSDG Inc. Architects
Vibrant Wood Tones: Explore a Spectrum of Spray Paint Colors!