Flaunting a sturdy reinforced concrete structure, metallic solar shades and aluminum window frames, the Yacht Clubhouse was inspired in its design by the sail shapes of prestigious America’s Cup vintage ships. The project was sketched out by Estudio Ramos and completed in 2014 in Buenos Aires, Argentina for a local nautical neighborhood community.
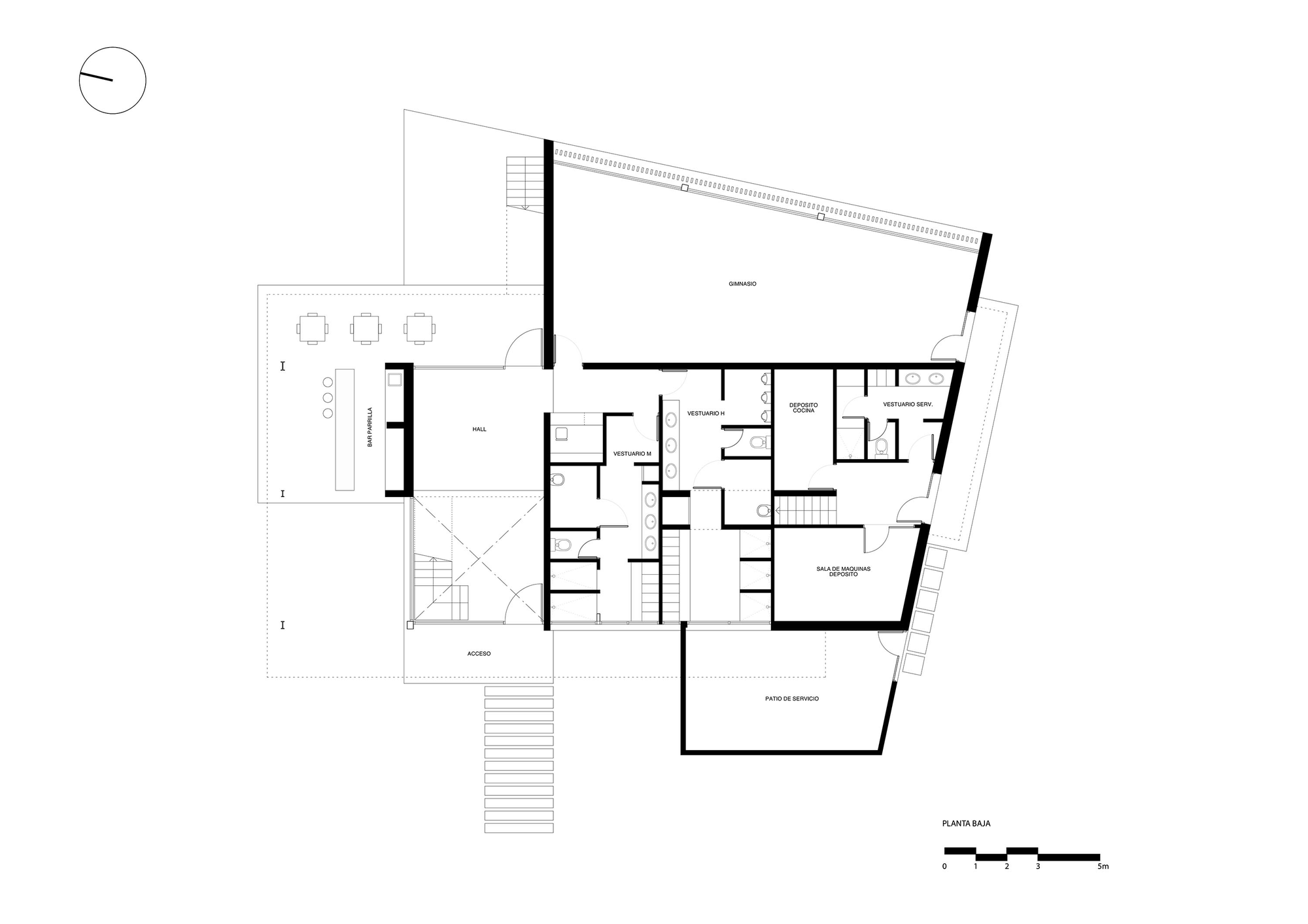
Spreading on two levels, the abode features a gymnasium, locker rooms and storage facilities on its ground floor, while its upper level benefits from perfect views of the restaurant and of the social spaces. The floors are linked by a staircase with wooden steps, while the fact that the ground floor boasts a double height ceiling definitely helps with the visual integration of the two levels. Upstairs, sliding doors provide access to an outdoor terrace, which can be used to take in the superb panoramas of the environment.
From the architect:
On the outskirts of the city of Buenos Aires, we have developed the Club House for the nautical neighborhood community of Nordelta in Tigre.
It is situated on a Peninsula with excellent views to the Yacht Club’s water channel, which connects to the Parana River.
The building was designed on two levels; the Upper level , with the best views for the Social Rooms and Restaurant, while the secondary program such as storage, locker rooms and the gym are placed at the ground floor.
The ground floor access presents a double height ceiling that connects and visually integrates both levels. While the ground floor placement follows the silhouette of the site, the first floor is rotated to catch the best orientation. The roof plane opens to the views and the sun.
Our main inspiration for the building’s morphology came from the geometric sail shapes of the America’s Cup vintage ships such as the” Reliance “ designed by Nat Herreshoff in 1903.
The building’s structure is reinforced concrete, with exposed concrete facades, aluminum window frames and metallic solar shades. Low maintenance materials such as wood and concrete on floors and walls are also used in the interior of the building.
Construction: Obras y Sistemas
Structural Engineer: IM & Asociados
Year: 2014
Photographs: Daniela Mac Adden














More Similar Articles Like This
Beautiful Apartment in Stockholm for $1 Million
Exceptional Coronado Bay Front Estate in California
Unique Click Clack Hotel In Bogota, Colombia
10 Different Types of Blue Paint Colors
Exploring the New World of Luxury Hoteling
Amazing Four Seasons Resort Bora Bora
Different Types Of Foundations For Summer Houses and Garden Buildings
6 Garden and Lawn Tips to Get Ready for Spring