Located on the southern tip of Sentosa Island, in Singapore, the magnificent Beacon House by Wow Architects flaunts superb 180-degree ocean views. A main source of inspiration for this project were the maritime elements that surrounded the site.
While the house is effectively protected form prying eyes in several key private areas, it is also beautifully open towards the surroundings in the social and entertaining spaces. The inviting living, dining, pool and garden area is permanently hidden from direct sunlight, as the house itself cantilevers over this area.
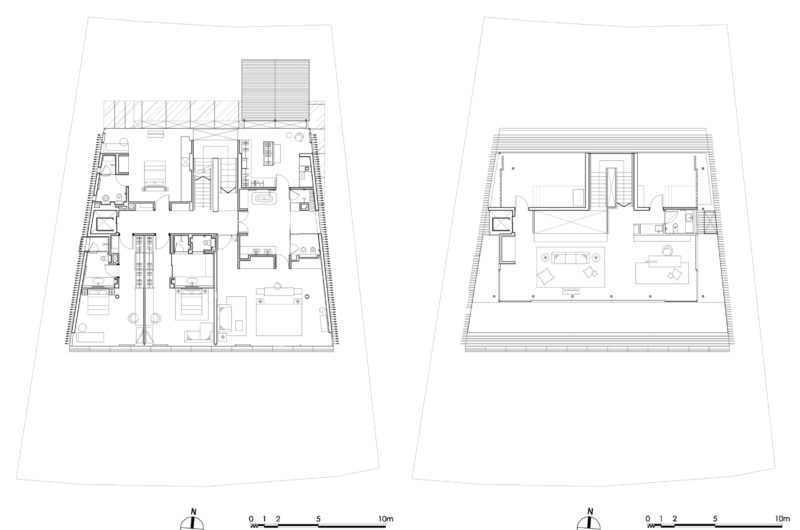
Probably the best views can be admired from the living/dining/kitchen area, which seamlessly continues towards the pool terrace. This, however, is not the only space where huge windows welcome natural light inside. Extensive glazing is present throughout the residence, but thanks to the architects, who chose high performance glass, the greenhouse effect is not a problem.
Completed in 2006, the residence flaunts 6,600 square feet of lavish spaces.

More Similar Articles Like This
Spectacular Rooftop Apartment by Innocad
Marvelous Anantara Dhigu Resort
Pure Perfection: Discover the Top White Paint Colors for a Flawless Décor
Different Types Of Foundations For Summer Houses and Garden Buildings
Spectacular Luxury House in Sarasota, Florida by DSDG Inc. Architects
The JKC1 House in Bukit Timah, Singapore
Stunning Sustainable Home in Costa Rica by SPG Architects
These Top Tips Will Help You to Turn Your Garden into the Ultimate Glamping Site!