Completed in 2014 in Quebec, Canada by Hatem+D Architecture, the Lausanne House flaunts 1,829 square feet of living space and was the focus of an extensive renovation project. The project included a complete reorganization of the façade as well as the addition of a garage and a new floor. The abode is connected to the outdoor environment through openings created by generously sized windows. This way, the living room and the kitchen are flooded with natural light and offer exceptional views of the surrounding trees and shrubs.
By adding the extra floor, the architects managed to create brand new bedrooms that impress with spaciousness and comfort. The master bedroom is the most noteworthy and boasts its own shower room and walk-in closet. The garage is connected to the main house via a large open hallway that also ensures that the center of the home is well lit and welcoming.
From the architect:
The project consisted of the renovation of a bungalow existing in Québec city, Canada. The owners wished to adapt their residence to their new lifestyle and the building needed a face-lift. Besides the addition of a complete floor and a garage, the reorganization of facades was carefully thought.
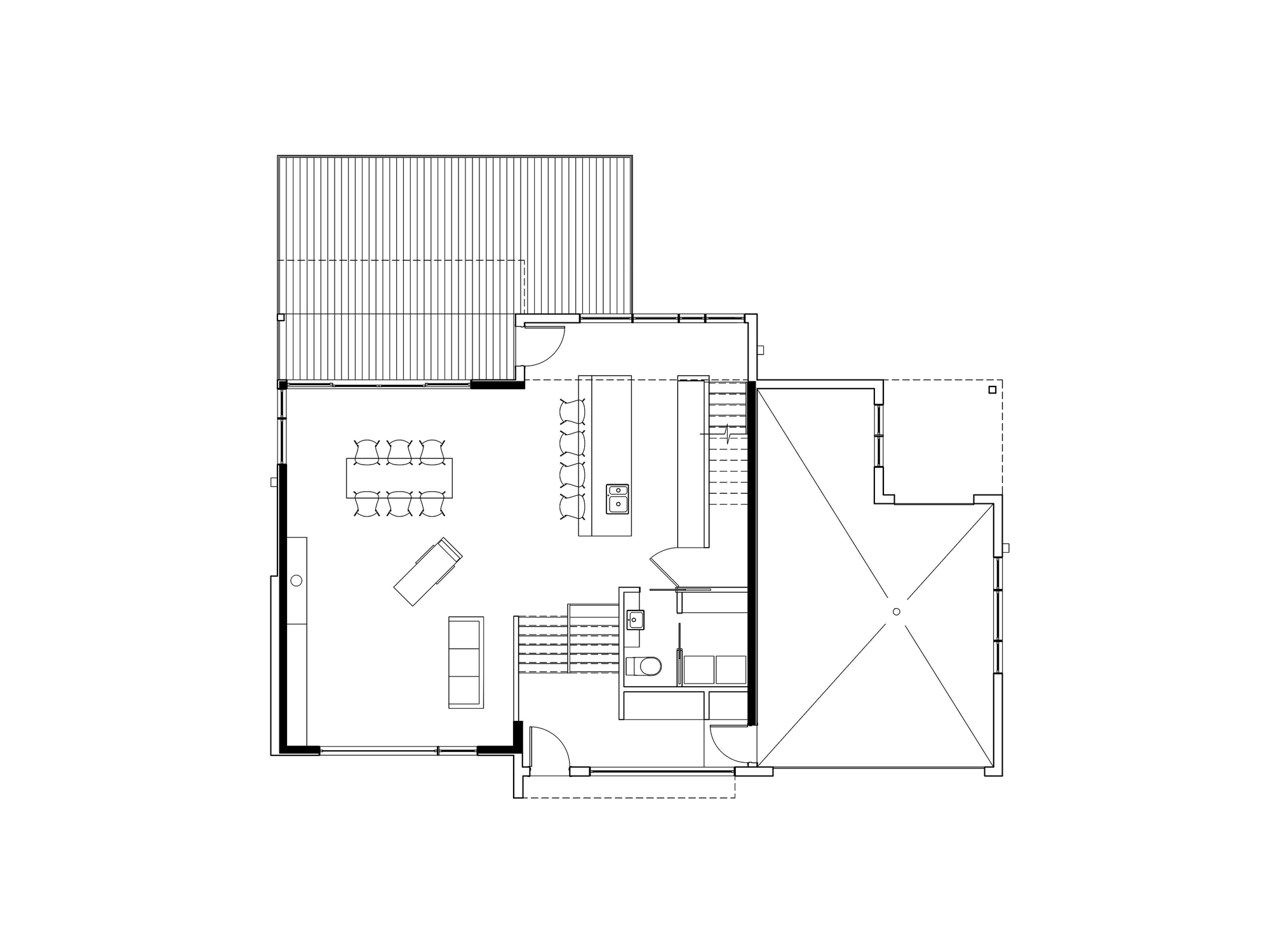
To pull the maximum of the natural luminosity and the views on their spacious and wooded ground, the owners wished to open the inside of the residence on the outside. The dining room so opens on a terrace and big openings allow to appreciate the landscape.
The kitchen, which is in area opened on the dining room, also takes advantage of big openings and distinguishes itself by a wide island and a very minimalist style. The integrated furniture hides a shower-room and a wide meat safe.
The addition of a floor allowed the creation of three vast bedrooms. The master chamber consists of an independent module combining a wide walk-in and a shower-room. This room also takes advantage of a balcony towards the back favoring a place for the quiet pondering over the wood.
A big hallway was added in front of the residence and makes the link between this one and its new garage. The hallway, generous and open, throws a great deal of light at the heart of the project.
As regards the architecture of facades, openings and materials were completely rethought. A cover of pale grey wood was installed at the level of the main block and a mixture of fibrocement and black bricks was installed on the block of horizontal reception. This set of simple volume created a dynamism in facade, the whole remaining sober and elegant.
The landscaping was thought to preserve a maximum of existing elements. Rocks discovered during the works were moved in various places on the site. Also, three mature trees were considered during the elaboration of the concept and preserved. Today, their foliage allows a magnificent play of shadow and light on facades.
Architect In Charge: Étienne Bernier architecte
Area: 170.0 sqm
Year: 2014
Photographs: Alexandre Guilbeault










More Similar Articles Like This
Loving Luxury at Mardan Palace Resort, Turkey
Exceptional Coronado Bay Front Estate in California
The Superb Villa Verai on Phuket Island, Thailand
Exploring the New World of Luxury Hoteling
Heavenly Lily Beach Resort & Spa In Huvahendhoo, Maldives
The Sophisticated Casa Villa Flamingo in Spain
Plain Geometric Residence Designed by Lidija Dragisic
Best paint colors for the living room