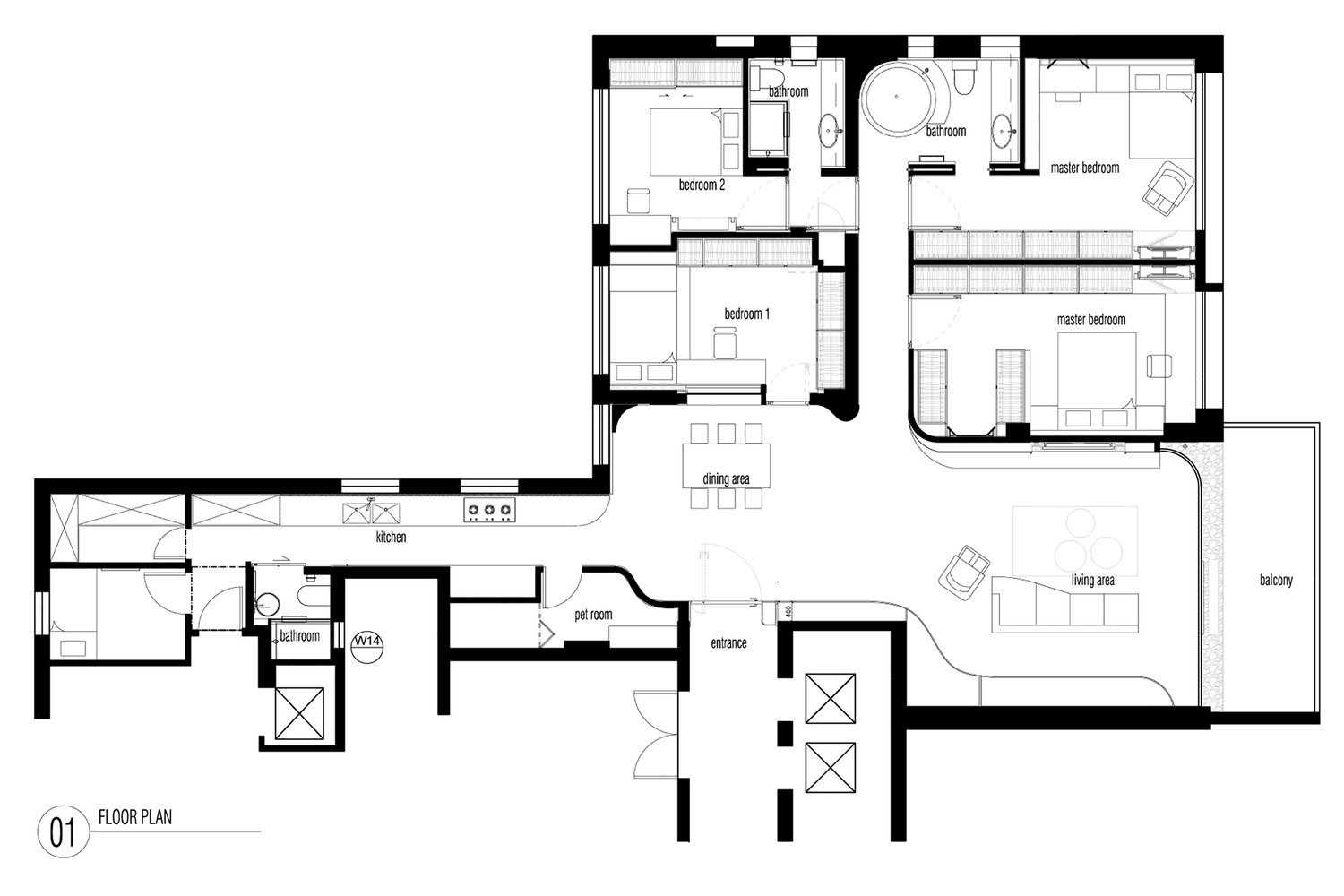
Flaunting 2,700 square feet of living space, this minimalistic and luxurious apartment is located on Stubbs Road, Hong Kong and was designed by NC Design & Architecture. Its main defining characteristics are represented by a 52-foot long wood wall complemented by hidden built-in wall features. The focal point of the apartment is an open plan living space that comprises the kitchen, dining area, living room and a bathroom.
The wood wall is offset by long narrow corridors, one of which leads the way to the kitchen and service spaces while the other leads to the communal bathroom and bedrooms. The house includes three large skylights that bring natural light into the living room, dining room and bathroom. The walls of the primary communal spaces feature two gray wall panels that can be slid open in order to access an entertainment room.
From the architect:
Apartment with simulated skylights
An apartment on Stubbs Road is an open and tranquil 2,700 square foot space defined by a 16m long sinuous wood wall, strong axial views lumi-nous ceiling oculi, and special hidden built-in wall features accommodating the specific daily routines of its residents. The residence is structured around a continuous communal area of the living room, dining room, kitchen and bathroom.
The gentle, undulating grey wood wall unifies these spaces, drawing occupants from the narrow interior kitchen area towards the wide living room with its grand vista of the Happy Valley Race course below. The subtle shades of grey; from gun metal grey to light ash, delicately accentuates this progression while also providing a neutral backdrop for the rich colors of the selected modern Scandinavian furniture.
The curvilinear wall is offset by two long narrow corridors; one armature holds the kitchen and service areas while the other leads to the bedrooms and communal bathroom. The long, seamless corridor frames the stand-alone white bathtub like a sculpture. The partial reveal draws occupants into the bathroom where they enter into an intimate curved room clad in a gradient of blue hexagonal Mutina wall tiles.
At the centre of the room is one of three large swirling simulated skylights in the residence. These feature lights anchor the dining room, the living room and the bathroom respectively, casting each space with a soft homogenous white light that accentuates the sensual elegance of the monochrome interiors.
On the bare walls of the main communal space are two large grey wall panels arranged like abstract modern art. These panels can be slid open to reveal an entertainment center and a portal to the bedroom of the resident fashion designer. These whimsical features add sense of surprise, dynamism, flexibility and interaction that defies the conventional boundaries of a traditional room. Coupled with the dining table, the designer can ex-tend their work surface between the two rooms. This tone of playful concealment can be found behind the grey wall which houses storage closets, pantry, and the powder room.
The objects of daily life are treated with care; each has their specific place in the residence. This sensitive gesture allows the main communal areas to be uncluttered and free as a meditative haven.
Architects: NC Design & Architecture
Location: Evergreen Villa Block A, 43 Stubbs Road, Hong Kong
Architect in Charge: Nelson Chow
Area: 2700.0 ft2
Photographs: Dennis Lo Designs











More Similar Articles Like This
Behr’s Brilliant Blues: 70 Shades of Stunning Paint Colors
The JKC1 House in Bukit Timah, Singapore
Exquisite Crossacres Mansion In Surrey, England
Tips for Choosing the Right Blue Paint Color for Your Dining Room
6 Garden and Lawn Tips to Get Ready for Spring
The Sophisticated Casa Villa Flamingo in Spain
Secluded Naladhu Island in Maldives
Dreamy Oceanfront Chateau In West Vancouver, Canada