The LM Guest House is a spacious and airy estate due to the all-glass façade that also magnifies the open feel of the living areas. It is located in Dutchess Country, New York and was designed by Desai/Chia Architecture.
This home is equipped with the latest technology for personal comfort such as geothermal heating and cooling, radiant floors, motorized solar shading, photovoltaic panels and rainwater harvesting.
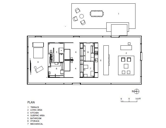
A slatted wood core is the main element that covers the mechanical, storage and bathing spaces and around which the open living and the sleeping areas are organized. Two sleeping couchettes include additional accommodations for the weekend guests. The warmth and the comfort in the house are also provided by the natural white oak wood detailing.
Photos by Paul Warchol















More Similar Articles Like This
Stunning Banyan Tree Ungasan Bali in Indonesia
Pure Perfection: Discover the Top White Paint Colors for a Flawless Décor
Shadowed Depths: Vintage-inspired Paint Colors for Dark Basements
Benjamin Moore Exterior Paint: Vibrant Shades for a Striking Home
Loving Luxury at Mardan Palace Resort, Turkey
Saguaro Palm Springs by Joie de Vivre
6 Garden and Lawn Tips to Get Ready for Spring
Spectacular Rooftop Apartment by Innocad