The Hewitt Avenue House is a minimalist style decorated home located on Hewitt Avenue in Toronto, Ontario, Canada, that was constructed by Altius Architecture.
Situated just steps away from Roncesvalles this building was constructed on the site of an existing home belonging to Toronto’s older neighborhoods.
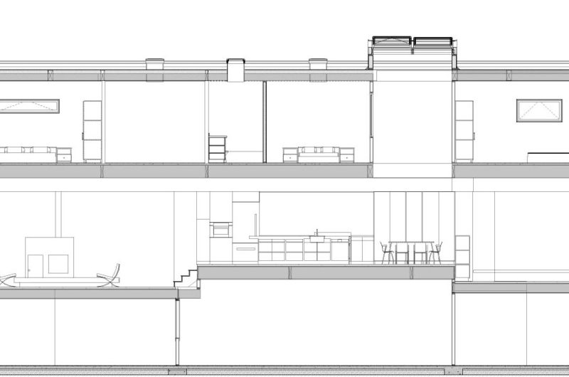
Among many facilities, there is a passive solar design strategy that takes advantage of the sun’s daily passage and the movement of the air and it also reduces energy loads and augment comfort in order to minimize the demand of the mechanical system. There are also two main vertical cavities that bring the light in the middle of the house all year long and naturally ventilate the spaces during summer.
The main materials used in building the house are brick, wood and cedar because the architects wanted a house with a sustainable structure, an exterior that could harmonize with the existing character of the street and a warm and welcoming interior design.












More Similar Articles Like This
Exceptional Coronado Bay Front Estate in California
The Superb Maradiva Villas Resort & Spa in Mauritius
Best paint colors for the living room
Behr’s Brilliant Blues: 70 Shades of Stunning Paint Colors
These Top Tips Will Help You to Turn Your Garden into the Ultimate Glamping Site!
Gorgeous And Spacious Home In Sunset Strip
Benjamin Moore Exterior Paint: Vibrant Shades for a Striking Home
Beautiful Apartment in Stockholm for $1 Million