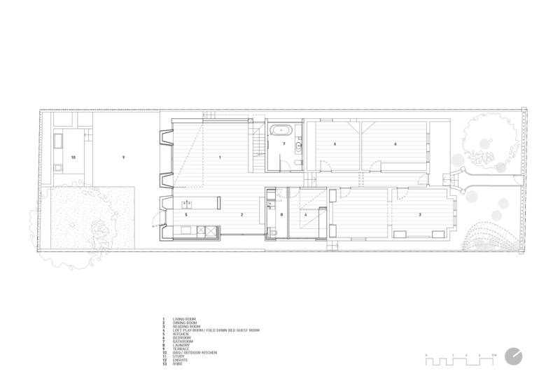
This modern and resilient home is called Glebe House, and it was designed by a team of experts from Nobbs Radford Architects. Located in Sydney NSW, Australia, the abode was renovated under the supervision of Sean Radford, and it now represents a masterpiece of architecture that retains few of its original Victorian era elements.
Instead of going for a framed construction, the architects decided to use sturdy concrete as the main material, which was used to envelop a series of openings in the façade. The residence offers 2,690 square feet of living space and impresses with crisp white, almost minimalistic interior arrangements that give off an atmosphere of elegance and fine taste. The furnishings are mostly beige or white but blue colored pieces were also implemented for a touch of variety. The cold, white walls contrast nicely with the brown wood floors and brown cabinetry in the kitchen.
The extensive use of concrete also contributed to a degree of sustainability, especially as far as thermal comfort is concerned. The material is known to ensure a cool interior environment during the hot season, but it can also provide adequate insulation in the cold winter months.
















More Similar Articles Like This
Superb Luxury Penthouse in Portomaso, Malta
The Superb Maradiva Villas Resort & Spa in Mauritius
5 Ways to Turn Your Yard Into a Fancy Space
Astonishing El Tovar by the Sea
Spectacular Luxury House in Sarasota, Florida by DSDG Inc. Architects
Marvelous Anantara Dhigu Resort
The Superb Villa Verai on Phuket Island, Thailand
Green Gables Home In Fairfield, Connecticut, United States