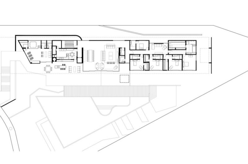
Nova Lima, Brazil is the land of JE House designed by Humberto Hermeto, consisting of a big residence with five suites and a large gallery because the owner is an art enthusiast.
In order to enjoy the spectacular views, this home is distributed under a continuous roof of 81 meters. From every room you can spot the mountains and by only watching them, the sensation of relaxation appears.
An elevator located in the central core makes the connection between the spaces in the house and between the first level of the gallery and the residence level. The ascensor proved to be very useful so, it also connects the service and the garage floor.
JE House has that certain je ne sais quoi.


























More Similar Articles Like This
Exceptional Coronado Bay Front Estate in California
Vibrant Concrete Floor Paint Colors to Elevate Your Space
Secluded Naladhu Island in Maldives
The Superb Maradiva Villas Resort & Spa in Mauritius
Extraordinary Constance Halaveli Maldives Resort
Stunning Banyan Tree Ungasan Bali in Indonesia
Seamlessly Apartment by the Beach by ZZ Architects
Heavenly Lily Beach Resort & Spa In Huvahendhoo, Maldives