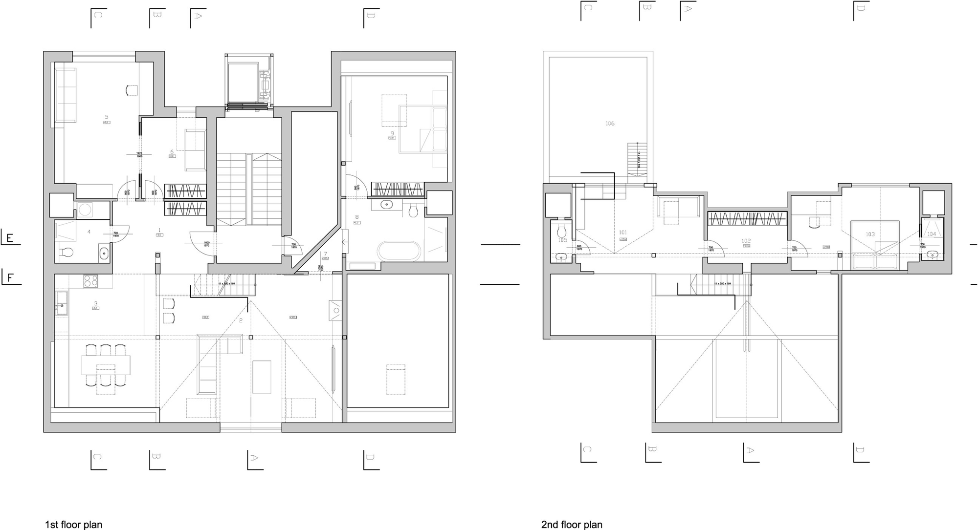
The reconstruction of this amazing loft apartment was carried out by B² Architecture in Prague, Czech Republic. The apartment belongs to a business executive that wanted a place where he would be able to kick back and relax between his frequent business trips, but he also wanted plenty of space to store and showcase his impressive collection of animal trophies. The abode measures 2,368 feet and was completed in 2013.
It features two levels linked by a steel staircase. The first floor houses an open space with a fully equipped kitchen and a living room. The upper floor is a more private space that incorporates two linear suites. One of these is reserved for the guest accommodations, media room, bathroom and living room, while the other flaunts another bathroom, the master bedroom and the utility areas. The living room boasts a secondary satellite kitchen and offers great socialization opportunities, while the bedrooms are kept private with the help of glazed pivot doors.
The master bedroom includes its own bathroom with a large steam shower as well as a spacious dressing room.
Photos by Alexandra Timpau














More Similar Articles Like This
Stunning Banyan Tree Ungasan Bali in Indonesia
Exploring the New World of Luxury Hoteling
Amazing Four Seasons Resort Bora Bora
Heavenly Lily Beach Resort & Spa In Huvahendhoo, Maldives
Spectacular Rooftop Apartment by Innocad
A Superb Italianate Mansion in California, USA
10 Different Types of Blue Paint Colors
Lovelli Residence: Mediterranean-Style Dwelling in Bali