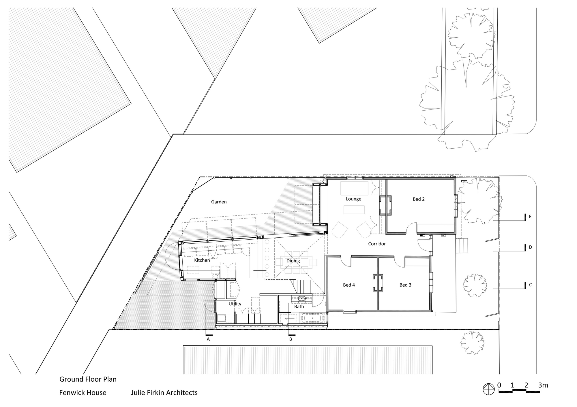
The Fenwick Street House is the result of a weatherboard cottage renovation in Clifton Hill, Australia. The project was completed in 2014 by Julie Firkin Architects, it flaunts 1,130 square feet of space and includes the addition of a two-level structure at the rear of the initial abode. This volume comprises a kitchen, a master bedroom and a new dining space.
Guaranteeing utmost thermal comfort regardless of the season, the new addition boasts an angular, tapered shape that allows natural light to flood the living areas during the winter while providing much needed shade during the summer. The main materials used for the expansion process are timber and concrete, both of which are complemented by bold touches of color for variety and contrast. The two floors are connected by an interior staircase with “floating” wooden steps and glass railings.
From the architect:
This design was developed to maximise the available light and space on an oddly shaped block in the inner suburban setting of Clifton Hill.
The original weatherboard cottage which addresses the street has been maintained while a new, two-level addition at the rear provides new kitchen and dining areas and a master bedroom suite.
The addition is angular and tapered in form with an overhanging upper level which allows for the living spaces to be drenched in light in winter while providing shade in summer.
Inside, a variety of subtly overlapping spatial volumes is achieved within a relatively simple overall form. The character of the natural materials such as timber and concrete is expressed against white surfaces with occasional moments of strong colour.
Area: 105.0 sqm
Year: 2014
Photographs: Christine Francis













More Similar Articles Like This
Gayton Road Residence by Paxton Locher Studio
A Superb Italianate Mansion in California, USA
Seamlessly Apartment by the Beach by ZZ Architects
Dreamy Oceanfront Chateau In West Vancouver, Canada
Exceptional Coronado Bay Front Estate in California
Boracay Resort & Spa in the Fascinating Philippines
Green Gables Home In Fairfield, Connecticut, United States
Astonishing El Tovar by the Sea