The Hanging Home has its name from the fact that is like a white cube hanging over a narrow side-garden. It was designed by Chris Briffa Architects which made their best to create a functional and modern space for a family of three who needed to capitalize their 250square meters of land.
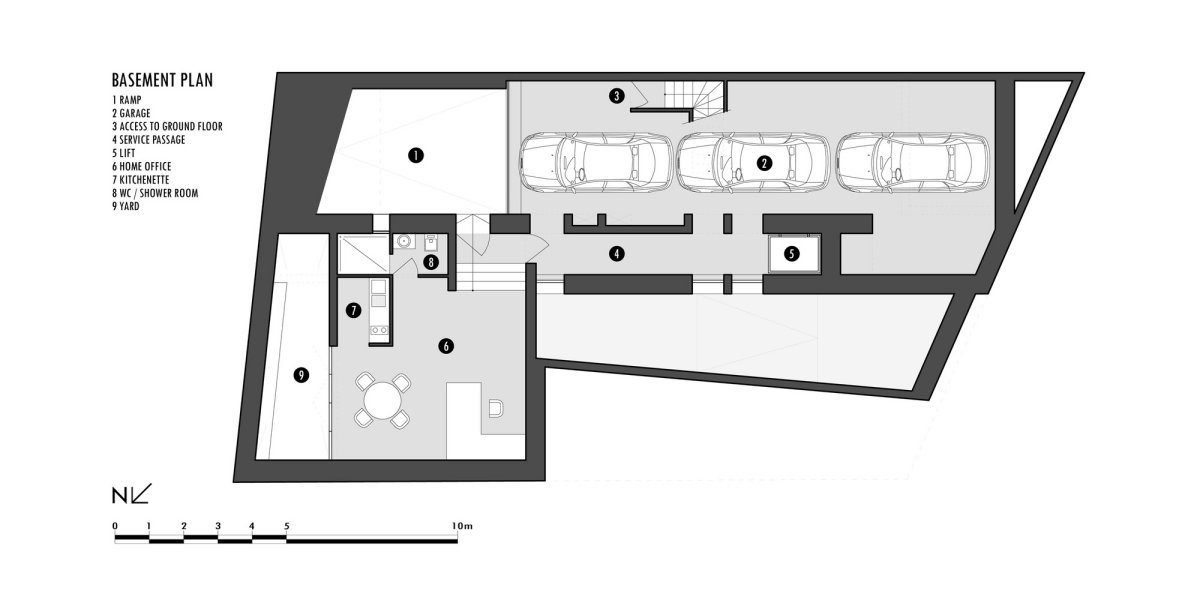
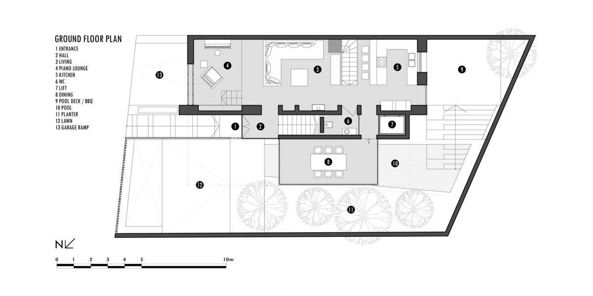
Although the available space was narrow, the owners had a lot of demands, making the job of the architects almost impossible because they had to squeeze an open plan living area, a separate dining room, two bedrooms with bathrooms, a home-office, a study, a three-car garage, a pool, as much garden as possible and an area for their daughter’s piano playing. All these were possible in the end, with very little adjustments such as the cantilevering of half of the house over the pool to liberate space.
The home-office is a special place, the architect’s favorite, because is partly underground and shares a wall with the pool while having access to the outdoor space as well.
The under-floor heating system keeps the house warm during winter and the fact that every room enjoys cross-ventilation from opposite windows keeps it cool through the summer, as well as the fact that the south-facing dining rooms become a terrace when the doors are opened.
Photos by David Pisani
















More Similar Articles Like This
Pure Perfection: Discover the Top White Paint Colors for a Flawless Décor
6 Garden and Lawn Tips to Get Ready for Spring
Best paint colors for the living room
Lawn Care Tips, The Basics For Each SeasonÂ
Exquisite Crossacres Mansion In Surrey, England
Benjamin Moore Exterior Paint: Vibrant Shades for a Striking Home
Vibrant Wood Tones: Explore a Spectrum of Spray Paint Colors!
Different Types Of Foundations For Summer Houses and Garden Buildings