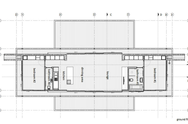
Westcliff Pavilion is a dreamy residence on the Westcliff Ridge in Johannesburg, South Africa. It was completed by GASS Architecture, who gave it a steel frame and an overall warm and cozy feel. The house has two bedrooms, and all its spaces are beautifully open towards the natural environment.
The idea of using steel as a main structural element and architectural motif came from a number of clearly defined reasons. First, the steel elements could be prepared offsite and then transported here as kit parts. This eliminated the need for huge construction machines that would have seriously affected the site, especially the massive concrete trucks. Logistically, this was the easiest building method.
Another benefit that came with using steel as a main construction element was that the pieces could be transported in smaller trucks somewhere near the site, from where they were successfully hand-carried down to where the actual building process took place. The only direct impact on the environment occurred in those places where the structural columns were buried into the ground, thus leaving most of the lot untouched.
Finally, there is one more thing that is special about the Westcliff Pavilion. Almost all nearby homes feature native stone work into their facades, and GASS Architecture drew a little inspiration from here as well. Consequently, they used locally sourced stones to create a very zen wall, but they did this without fully complying to tradition. Instead of creating a strong, sturdy stone structure, they decided to create the impression of a floating wall. We love the idea and we love the project as a whole.
Photos by: Bernard Viljoen



















More Similar Articles Like This
Seamlessly Apartment by the Beach by ZZ Architects
Boracay Resort & Spa in the Fascinating Philippines
Outstanding Bodrum Houses in Yalikavak, Turkey
Opulent Mandarin Oriental Hotel in Paris
Exceptional Coronado Bay Front Estate in California
Superb Luxury Penthouse in Portomaso, Malta
5 Ways to Turn Your Yard Into a Fancy Space
Tips for Choosing the Right Blue Paint Color for Your Dining Room