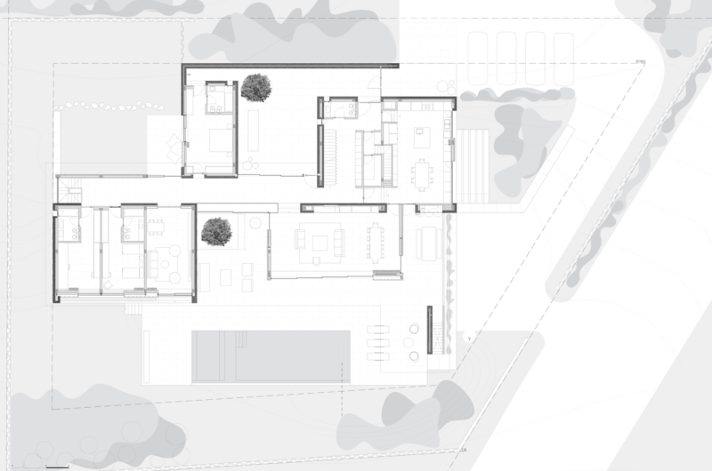
Located near the sea, the Buenos Mares House is a massive construction completed by RDR Arquitectos in 2009.
It is located in one of the busiest areas during the summer because of the approximation to the beach, its views being orientated towards the west and the sunset.
It is mostly a vacation home because the family uses it more during the summer and occasionally during winter.
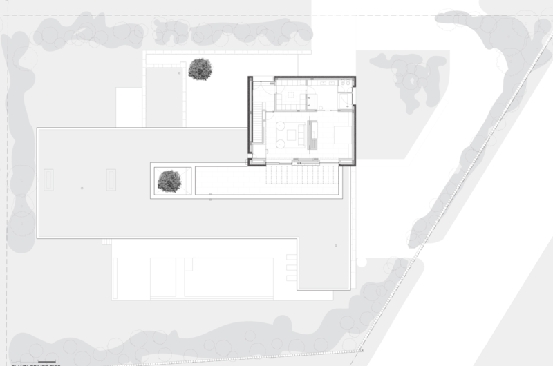
Many stone wall pavilions separated by courtyards form the house while the roof garden relates it with the ocean horizon.
















More Similar Articles Like This
The Superb Maradiva Villas Resort & Spa in Mauritius
Shadowed Depths: Vintage-inspired Paint Colors for Dark Basements
Lawn Care Tips, The Basics For Each SeasonÂ
Seamlessly Apartment by the Beach by ZZ Architects
Plain Geometric Residence Designed by Lidija Dragisic
Extraordinary Constance Halaveli Maldives Resort
6 Garden and Lawn Tips to Get Ready for Spring
Vibrant Wood Tones: Explore a Spectrum of Spray Paint Colors!