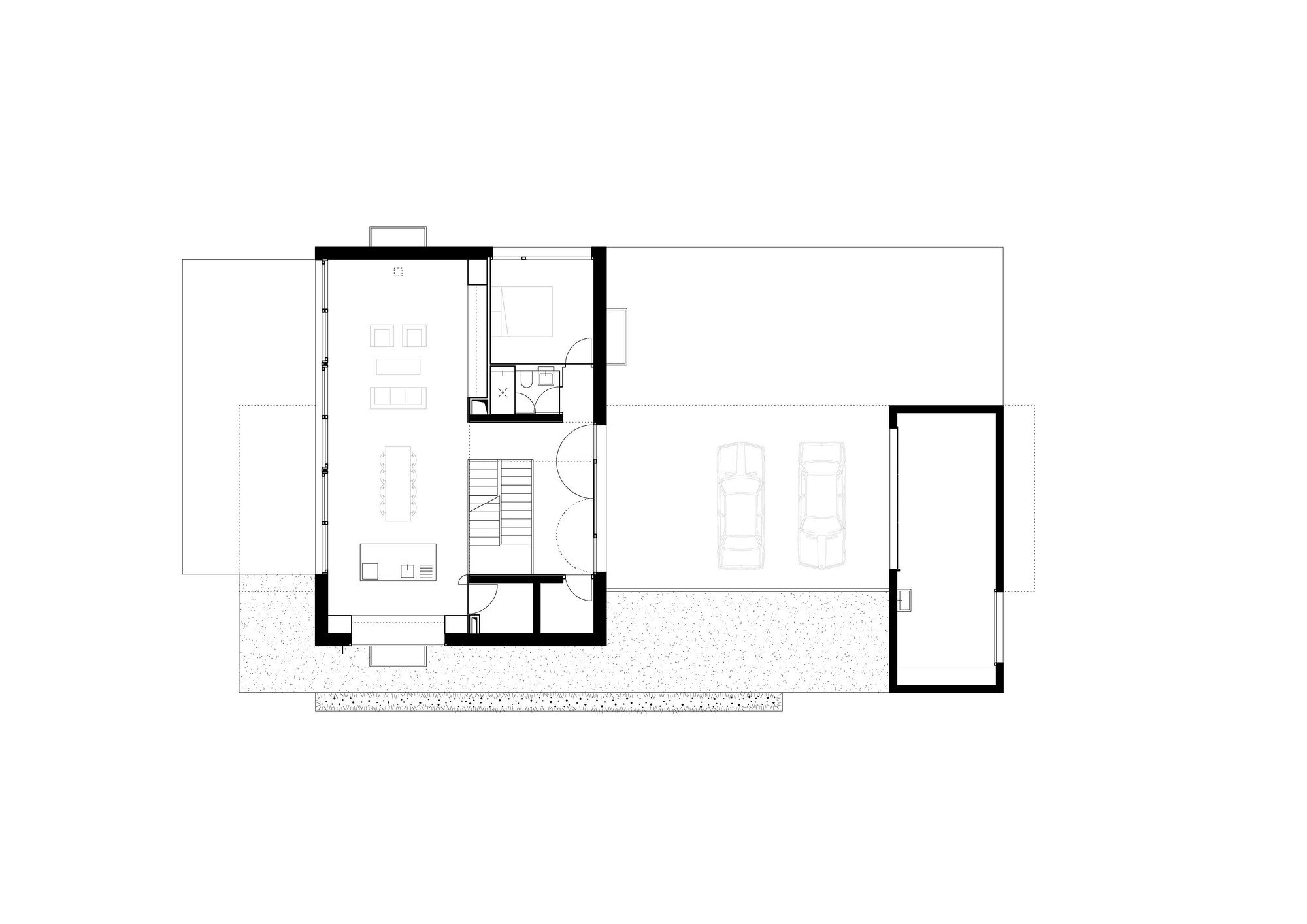
This modern housing project was completed in 2013 in Tannay, Switzerland and was designed by a team of architects from Christian von Düring. Flaunting a modern design inside and out, the residence provides impeccable living conditions for a single family. Its ground floor includes a garage to the north as well as a living space to the south, both of which are linked by a special volume that comprises the bedrooms.
By linking these two volumes, the architects also created a covered entryway that supports a variety of activities. Inside, the residents are greeted by a suspended staircase that ensures easy access to the volume above. The upstairs bedrooms are linked by a corridor, which also leads the way to a central playroom.
The horizontal open joint cladding implemented for the upper floor is made out of pre-grayed squared larch rods that were placed at a 45-degree angle and create an impressive display of shadows.
From the architect:
The challenge of this project was to integrate a large program on a relatively narrow plot while maintain- ing usable outdoor surfaces. An additional concern, was that the access to the plot being from the south, a solution had to be found to manage an entrance while ensuring privacy for the indoor and outdoor spaces.
The solution proposes two volumes on the ground floor, respectively a garage to the north and the living area to the south, connected above by a volume containing the bedrooms. In addition to the terrace to the south, the area resulting from the bridging of these two volumes offers a generous covered entry suitable for various activities.The house is accessed by a slightly elevated drive way that follows the western prop- erty line, bypassing the terrace and entering the house from the rear covered area.
Once inside, one is immediately faced with an open suspended staircase connecting to the above volume, through which one perceives a large room open onto the garden containing a kitchen with its large dining table and a spacious living room. Upstairs, a corridor running along the west facade connects the bed- rooms and a central play-room. At each end there is a large bedroom with a balcony open to the outside. One overlooks the south terrace, while the other projects into the forest line bordering the plot.
The building is comprised of ground floor masonry volumes on which is placed a wooden structure made of two large truss- es spanning the entire length.The insulated triangulated framework freely runs on the inside of the windows and provides a deep sill.
Composed of pre-grayed squared larch rods, the horizontal open joint cladding of the upper floor accentuates its longitudinal expression in order to reduce its volumetric impact. Placed at a 45 degree angle, the rods amplify this effect by the resulting shadows and in the long-term the aging will increase this effect due to the different exposures to the rain and sun.
- Location: Tannay, Switzerland
- Area: 257.0 sqm
- Project Year: 2013
- Photographs: Thomas Jantscher
- Engineers: Ingeni SA
- Contractor: atba SA


















More Similar Articles Like This
Gorgeous And Spacious Home In Sunset Strip
Best paint colors for the living room
Marvelous Anantara Dhigu Resort
Astonishing El Tovar by the Sea
Outstanding Bodrum Houses in Yalikavak, Turkey
The JKC1 House in Bukit Timah, Singapore
Boracay Resort & Spa in the Fascinating Philippines
Santa Barbara Style Home in Paradise Valley, Phoenix